Postponed | Lot 16

Leeds Road, Bradford, West Yorkshire, BD1 5BQ

Postponed

  • Apartment
  • 1 Bedroom
  • Tenure: Leasehold

Call the team on 0113 393 3482 for more information

Auction Date

Wed 31/08/2022

Auction Time

12:00

Auction Venue

Live Stream Auction

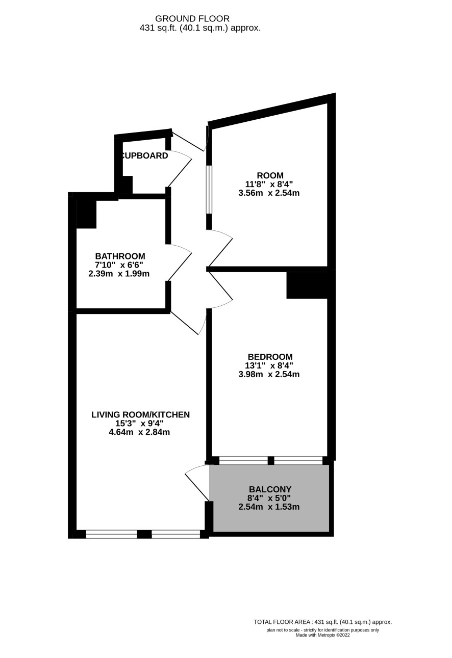
This 3rd floor one bedroom apartment, located within The Gatehaus development in Bradford City Centre, is sure to appeal to the buy to the investor. Rents in the area have increased in recent months and, once freshened up, this apartment could achieve £500-£600 per calendar month. Currently vacant, the property now requires some cosmetic improvement. The apartment is bigger than it sounds with a useful second room which is a good size but does not have an external window. There is also a balcony that looks out into the central courtyard of the development. The Gatehaus development is very close to the centre of Bradford and only a short walk from the Broadway shopping centre.

Tenure

Leasehold

Third floor

Living room/kitchen, bedroom, room, bathroom

Additional Information

Council Tax

Bradford Metropolitan Council - Tax Band B

Tenure:

Leashold - details to be advised

Disclaimer:

Any information in relation to the length of lease, service charge, ground rent and council tax has been confirmed by our sellers. We advise buyers to make their own enquiries through their solicitors to verify that the information provided is accurate and not been subject to any change.

Charges and Payments

In addition to the deposit Administration Charge: 0.9% inc VAT of the purchase price subject to a minimum of £1,200 inc VAT. Buyer's Premium: £1,140 Inc VAT

Important Notice to Prospective Buyers:

We draw your attention to the Special Conditions of Sale within the Legal Pack, referring to other charges in addition to the purchase price which may become payable. Such costs may include Search Fees, reimbursement of Sellers costs and Legal Fees, and Transfer Fees amongst others.

Additional Fees

Administration Charge - See above

Disbursements - Please see the legal pack for any disbursements listed that may become payable by the purchaser on completion.

View Larger Map

Disclaimer: The map preview provided above is for general guidance only and may not accurately reflect the exact location or surrounding buildings. Prospective buyers and interested parties are strongly advised to independently verify the precise location and surroundings before bidding.