For Sale By Auction | 12:00, 01 February 2023 | Lot 45

34 Marshall Street, Morley, Leeds, West Yorkshire LS27 8HS

Sold

  • Terraced House
  • 2 Bedrooms

Call the team on 0113 393 3482 for more information

Auction Date

Wed 01/02/2023

Auction Time

12:00

Auction Venue

Live Stream

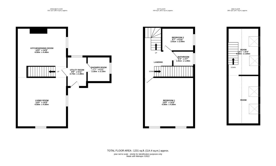
This deceptively spacious two bedroom double fronted rear back-to-back with large garden is located within walking distance of Morley town centre. The accommodation is spread over three floors, benefiting from a ground floor shower room, great sized principal bedroom and two attic rooms. The property has off street parking. Requiring modernisation throughout, it is sure to appeal to those looking for a simple project.

Ground Floor

Utility room, shower room, living room, kitchen/dining room.

First Floor

Principle bedroom, house bathroom and second bedroom.

Second Floor

Two Attic rooms.

ADDITIONAL INFORMATION

Council Tax

Band A.

Tenure

Freehold.

Charges & Payments

In addition to the deposit Administration Charge: 0.9% inc VAT of the purchase price subject to a minimum of £1,200 inc VAT. Search Fees: £240 inc VAT.

Important Notice to Prospective Buyers:

We draw your attention to the Special Conditions of Sale within the Legal Pack, referring to other charges in addition to the purchase price which may become payable. Such costs may include Search Fees, reimbursement of Sellers costs and Legal Fees, and Transfer Fees amongst others.

Additional Fees

Administration Charge - See above

Disbursements - Please see the legal pack for any disbursements listed that may become payable by the purchaser on completion.

View Larger Map

Disclaimer: The map preview provided above is for general guidance only and may not accurately reflect the exact location or surrounding buildings. Prospective buyers and interested parties are strongly advised to independently verify the precise location and surroundings before bidding.