Postponed | Lot 12

3 Beechwood Grove, Bradford, West Yorkshire • BD6 3AE

Postponed

  • Terraced House
  • 3 Bedrooms

Call the team on 0113 393 3482 for more information

Auction Date

Wed 01/02/2023

Auction Time

12:00

Auction Venue

Live Stream

This substantial three bedroom through terrace in Wibsey will make a great project for the investor or local resident. Having been neglected in recent years, the property is now in need of a full scheme of renovation and presents an opportunity to add value. Internally, there are two reception rooms to the ground floor and three double bedrooms. There may be scope to divide the second floor bedroom into two and add dormer roofs, subject to the necessary consents. The property is located on a pleasant tree lined street, just 0.5 miles from Wibsey town centre and amenities and with good access to the M62.

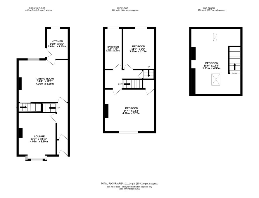
Ground Floor

Lounge, dining room and kitchen.

First Floor

Two bedrooms and bathroom.

Second Floor

Bedroom.

Externally

Small gardens to front and rear.

ADDITIONAL INFORMATION

Council Tax

Band B.

Tenure

Freehold.

Charges & Payments

In addition to the deposit Administration Charge: 0.9% inc VAT of the purchase price subject to a minimum of £1,200 inc VAT.

Important Notice to Prospective Buyers:

We draw your attention to the Special Conditions of Sale within the Legal Pack, referring to other charges in addition to the purchase price which may become payable. Such costs may include Search Fees, reimbursement of Sellers costs and Legal Fees, and Transfer Fees amongst others.

Additional Fees

Administration Charge - See above

Disbursements - Please see the legal pack for any disbursements listed that may become payable by the purchaser on completion.

View Larger Map

Disclaimer: The map preview provided above is for general guidance only and may not accurately reflect the exact location or surrounding buildings. Prospective buyers and interested parties are strongly advised to independently verify the precise location and surroundings before bidding.