For Sale By Auction | 12:00, 17 May 2023 | Lot 47

138 Tong Street, Bradford, West Yorkshire BD4 9PP

Sold

  • Semi-Detached House
  • 3 Bedrooms

Call the team on 0113 393 3482 for more information

Auction Date

Wed 17/05/2023

Auction Time

12:00

Auction Venue

Live Stream

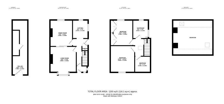
A good sized three-bedroom semi-detached house ideally placed close to major transport links and local amenities and Knowles Park. The property does require renovation throughout but is sure to be of appeal to those looking for a straightforward project. The property benefits from a spacious rear garden meaning there is potential to extend subject to acquiring necessary planning permission and consents. The property briefly comprises, entry porch, entry hall with storage cupboard, living room, dining room and kitchen. To the first floor there are two double bedrooms, a single bedroom, and a bathroom. The property also has an attic room accessed by ladder and a basement that is accessible from the rear garden. Buyers should be aware that the front garden is not included on the land registry documents and are advised to do their own research I this regard.

Lower ground floor

Basement

Ground floor

Entry porch, hallway, living room, dining room and kitchen

First floor

Three bedrooms and a bathroom

Second floor

Attic

Externally

Front garden, driveway, garage and spaciour rear garden

Additional Information

Council Tax

Bradford city council - Tax band B

Tenure

Freehold

Charges and Payments

In addition to the deposit Administration Charge: 0.9% inc VAT of the purchase price subject to a minimum of £1,200 inc VAT.

Important Notice to Prospective Buyers:

We draw your attention to the Special Conditions of Sale within the Legal Pack, referring to other charges in addition to the purchase price which may become payable. Such costs may include Search Fees, reimbursement of Sellers costs and Legal Fees, and Transfer Fees amongst others.

Additional Fees

Administration Charge - See above

Disbursements - Please see the legal pack for any disbursements listed that may become payable by the purchaser on completion.

View Larger Map

Disclaimer: The map preview provided above is for general guidance only and may not accurately reflect the exact location or surrounding buildings. Prospective buyers and interested parties are strongly advised to independently verify the precise location and surroundings before bidding.