For Sale By Auction | 12:00, 17 May 2023 | Lot 1

19-21 Laithes Lane, Athersley, Barnsley, Barnsley S71 3AA

Sold

  • Retail Property (high street)

Call the team on 0113 393 3482 for more information

Auction Date

Wed 17/05/2023

Auction Time

12:00

Auction Venue

Live Stream

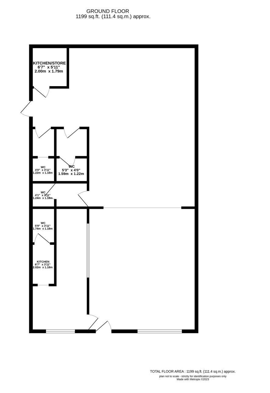
This single storey former bookmakers is now offered with vacant possession and could lend itself to a range of uses subject to the necessary consents being obtained. The internal accommodation briefly comprises of open plan space with office, kitchen, storeroom and four wc's. Externally the property sits on a generous plot with the land to the rear of the property included within the sale. The property is located in a primarily residential area just 1.5 miles to the north of Barnsley town centre.

Ground Floor

Two rooms, kitchen/store, kitchen and four wc's.

Externally

Generous plot of land.

ADDITIONAL INFORMATION

Tenure

Freehold.

Charges & Payments

In addition to the deposit Administration Charge: 0.9% inc VAT of the purchase price subject to a minimum of £1,200 inc VAT.

Important Notice to Prospective Buyers:

We draw your attention to the Special Conditions of Sale within the Legal Pack, referring to other charges in addition to the purchase price which may become payable. Such costs may include Search Fees, reimbursement of Sellers costs and Legal Fees, and Transfer Fees amongst others.

Additional Fees

Administration Charge - See above

Disbursements - Please see the legal pack for any disbursements listed that may become payable by the purchaser on completion.

View Larger Map

Disclaimer: The map preview provided above is for general guidance only and may not accurately reflect the exact location or surrounding buildings. Prospective buyers and interested parties are strongly advised to independently verify the precise location and surroundings before bidding.