Postponed | Lot 18

80 Burlington Road, Leeds, West Yorkshire LS11 7DS

Postponed

  • Terraced House
  • 3 Bedrooms

Call the team on 0113 393 3482 for more information

Auction Date

Wed 17/05/2023

Auction Time

12:00

Auction Venue

Live Stream

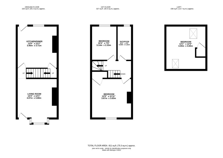
Three bedroom through terrace. Whilst the property has double glazing and gas central heating the property does require renovation throughout but is sure to appeal to those looking for a straightforward project. Located in Beeston's selective licensing area the property briefly comprises, living room, and kitchen / diner to the ground floor. To the first floor there are two bedrooms and a house bathroom where some renovation has recently started. To the second floor there is a good-sized bedroom. The property also benefits from a basement. The property will be sold as seen with all contents, fixtures and fittings included.

Lower Ground Floor

Basement - unable to inspect.

Ground Floor

Living room and kitchen/diner.

First Floor

Two bedrooms and bathroom.

Second Floor

Bedroom.

ADDITIONAL INFORMATION

Council Tax

Band A.

Tenure

Freehold.

Charges & Payments

In addition to the deposit Administration Charge: 0.9% inc VAT of the purchase price subject to a minimum of £1,200 inc VAT.

Important Notice to Prospective Buyers:

We draw your attention to the Special Conditions of Sale within the Legal Pack, referring to other charges in addition to the purchase price which may become payable. Such costs may include Search Fees, reimbursement of Sellers costs and Legal Fees, and Transfer Fees amongst others.

Additional Fees

Administration Charge - See above

Disbursements - Please see the legal pack for any disbursements listed that may become payable by the purchaser on completion.

View Larger Map

Disclaimer: The map preview provided above is for general guidance only and may not accurately reflect the exact location or surrounding buildings. Prospective buyers and interested parties are strongly advised to independently verify the precise location and surroundings before bidding.