Postponed | Lot 12

10 Halstead Place, Bradford, Bradford BD7 3LY

Postponed

  • Light Industrial

Call the team on 0113 393 3482 for more information

Auction Date

Wed 12/07/2023

Auction Time

12:00

Auction Venue

Live Stream

This substantial commercial premises has been used as a workshop for many years and could lend itself to a range of uses subject to the necessary consents being obtained. Obviously it maybe that interested parties just wish to carry on using the property in much the same vein with similar properties being so few and far between. It briefly comprises and open plan workshop and store to the ground floor with further workshop, kitchen and WC on the first floor / mezzanine. The property is located 1.6 miles to the to the South West of Bradford city centre with the M606 motorway link road 1.7 miles away.

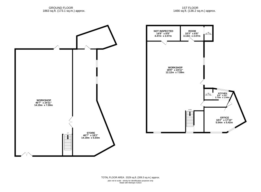
Ground Floor

Workshop, room and store room.

First Floor

Workshop, office, kitchen, two rooms (one not inspected).

ADDITIONAL INFORMATION

Tenure

Freehold.

Charges & Payments

In addition to the deposit Administration Charge: 0.9% inc VAT of the purchase price subject to a minimum of £1,500 inc VAT.

Important Notice to Prospective Buyers:

We draw your attention to the Special Conditions of Sale within the Legal Pack, referring to other charges in addition to the purchase price which may become payable. Such costs may include Search Fees, reimbursement of Sellers costs and Legal Fees, and Transfer Fees amongst others.

Additional Fees

Administration Charge - See above

Disbursements - Please see the legal pack for any disbursements listed that may become payable by the purchaser on completion.

View Larger Map

Disclaimer: The map preview provided above is for general guidance only and may not accurately reflect the exact location or surrounding buildings. Prospective buyers and interested parties are strongly advised to independently verify the precise location and surroundings before bidding.