For Sale By Auction | 12:00, 06 September 2023 | Lot 1

10 Brian Crescent, Leeds, West Yorkshire • LS15 7PN

Sold

  • Semi-Detached House
  • 3 Bedrooms
  • Tenure: Freehold

Call the team on 0113 393 3482 for more information

Auction Date

Wed 06/09/2023

Auction Time

12:00

Auction Venue

Live Stream

Three-bedroom semidetached house located on a corner plot in a popular residential location. The property requires modernisation throughout. At the time of writing, another three-bedroom semi-detached house on Brian Crescent is on the market for £260,000 demonstrating the potential for any developer to make a substantial profit.

Tenure

Freehold

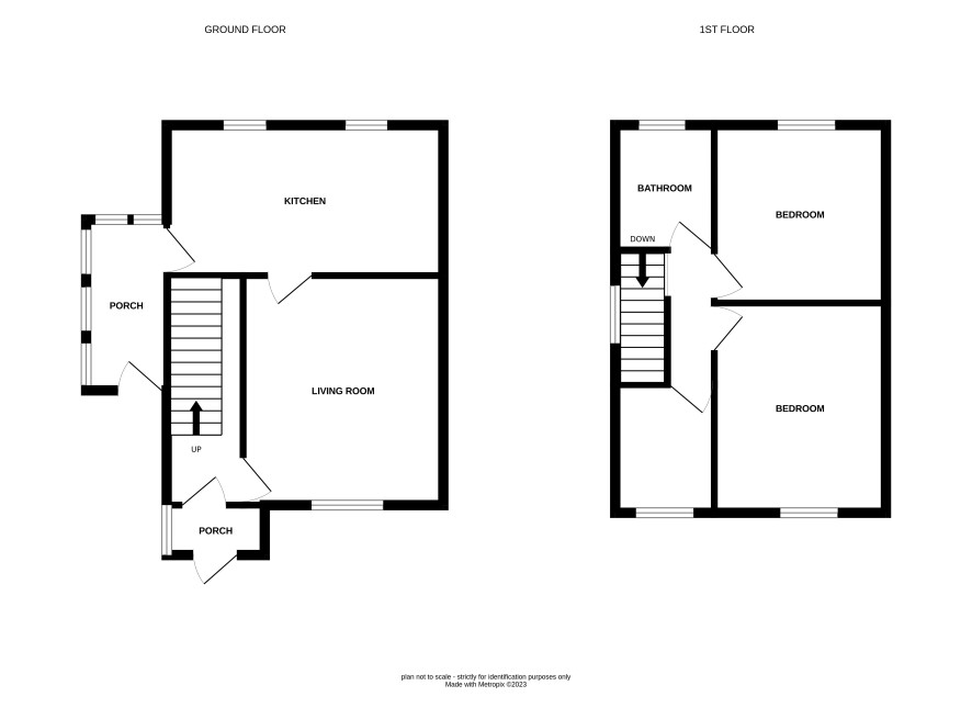
Ground floor

Poch, living room, kitchen/dining room and side porch

First floor

Bathroom, three bedrooms

Externally

Driveway, front and rear garden

Additional Information

Council Tax

Leeds city council - Band B

Tenure

Freehold

Charges and Payments

In addition to the deposit Administration Charge: 0.9% inc VAT of the purchase price subject to a minimum of £1,500 inc VAT. Search Fees: £240 inc VAT.

Important Notice to Prospective Buyers:

We draw your attention to the Special Conditions of Sale within the Legal Pack, referring to other charges in addition to the purchase price which may become payable. Such costs may include Search Fees, reimbursement of Sellers costs and Legal Fees, and Transfer Fees amongst others.

Additional Fees

Administration Charge - See above

Disbursements - Please see the legal pack for any disbursements listed that may become payable by the purchaser on completion.

View Larger Map

Disclaimer: The map preview provided above is for general guidance only and may not accurately reflect the exact location or surrounding buildings. Prospective buyers and interested parties are strongly advised to independently verify the precise location and surroundings before bidding.