For Sale By Auction | 12:00, 06 September 2023 | Lot 19

85 Summerfield Drive, Leeds, West Yorkshire • LS13 1AJ

Sold

  • Semi-Detached House
  • 3 Bedrooms

Call the team on 0113 393 3482 for more information

Auction Date

Wed 06/09/2023

Auction Time

12:00

Auction Venue

Live Stream

Three bedroom semi detached home on a good sized corner plot. The property is currently tenanted and is generating an income of £8,320 per annum. Internally the property would benefit from some modernisation. The size of the plot means there is scope to extend subject to obtaining the necessary planning and consents.

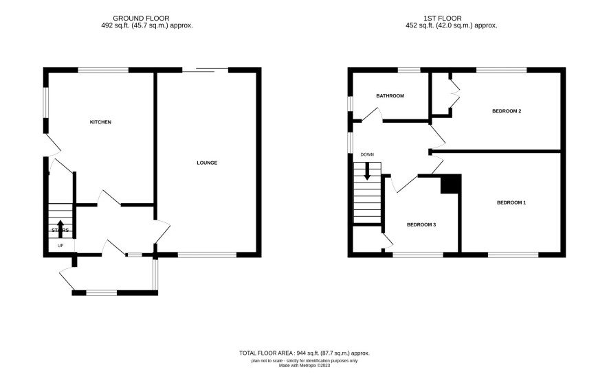
Ground floor

Porch, hallway, living room and kitchen

First floor

Three bedrooms and bathroom

Externally

Corner plot with gardens to 3 sides

Additional Information

Council Tax

Leeds city council - Tax band A

Tenure

Freehold

Charges and Payments

In addition to the deposit Administration Charge: 0.9% inc VAT of the purchase price subject to a minimum of £1,500 inc VAT. Search Fees: £240 inc VAT.

Important Notice to Prospective Buyers:

We draw your attention to the Special Conditions of Sale within the Legal Pack, referring to other charges in addition to the purchase price which may become payable. Such costs may include Search Fees, reimbursement of Sellers costs and Legal Fees, and Transfer Fees amongst others.

Additional Fees

Administration Charge - See above

Disbursements - Please see the legal pack for any disbursements listed that may become payable by the purchaser on completion.

View Larger Map

Disclaimer: The map preview provided above is for general guidance only and may not accurately reflect the exact location or surrounding buildings. Prospective buyers and interested parties are strongly advised to independently verify the precise location and surroundings before bidding.