For Sale By Auction | 12:00, 25 October 2023 | Lot 48

7 The Haven, Bradford, West Yorkshire • BD10 9HP

Sold

  • Semi-Detached House
  • 3 Bedrooms

Call the team on 0113 393 3482 for more information

Auction Date

Wed 25/10/2023

Auction Time

12:00

Auction Venue

Live Stream

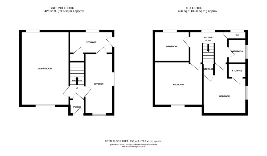
Three bedroom semi detached property with front and rear gardens. The property does require modernisation and refurbishment throughout but is sure to appeal to developers. The property briefly comprises, entry porch, living room, kitchen with utility space and storage to the ground floor. To the first floor there are three bedrooms, a bathroom and a WC. Externally the property benefits from front and rear gardens.

Ground Floor

Entrance porch, living room, kitchen and utility area.

First Floor

Three bedrooms, wc and bathroom.

Externally

Front and rear gardens.

ADDITIONAL INFORMATION

Council Tax

Band A.

Tenure

Freehold.

Charges & Payments

In addition to the deposit Administration Charge: 0.9% inc VAT of the purchase price subject to a minimum of £1,500 inc VAT. Searches £240 inclu VAT

Important Notice to Prospective Buyers:

We draw your attention to the Special Conditions of Sale within the Legal Pack, referring to other charges in addition to the purchase price which may become payable. Such costs may include Search Fees, reimbursement of Sellers costs and Legal Fees, and Transfer Fees amongst others.

Additional Fees

Administration Charge - See above

Disbursements - Please see the legal pack for any disbursements listed that may become payable by the purchaser on completion.

View Larger Map

Disclaimer: The map preview provided above is for general guidance only and may not accurately reflect the exact location or surrounding buildings. Prospective buyers and interested parties are strongly advised to independently verify the precise location and surroundings before bidding.