Sold Prior | Lot 33

3 Orion Drive, Leeds, West Yorkshire • LS10 3JD

Sold Prior

  • Detached House
  • 3 Bedrooms

Call the team on 0113 393 3482 for more information

Auction Date

Wed 25/10/2023

Auction Time

12:00

Auction Venue

Live Stream

This vacant detached property, located in Belle Isle, was divided into 1 x 1 bed flat and 1 x 2 bed flat many years ago and is sure to appeal to a range of investors. One of the flats is well presented, another in need of renovation and there is also a large garage/workshop to the rear which is currently let to a neighbour. Once improved, it could provide a strong return for a landlord. Alternatively, with the property currently vacant, some buyers may look to return the property to a single dwelling and sell onto a homebuyer in the future.

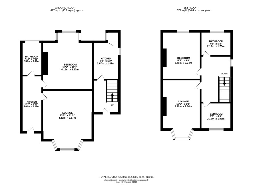
Ground Floor

3 - Hall & Kitchen 3A - Lounge, kitchen, bedroom and bathroom.

First Floor

3 - Lounge, two bedrooms and bathroom.

Externally

Low maintenance gardens to front and rear and workshop/garage.

ADDITIONAL INFORMATION

Council Tax

Band A.

Tenure

Freehold.

Charges & Payments

In addition to the deposit Administration Charge: 0.9% inc VAT of the purchase price subject to a minimum of £1,500 inc VAT. Searches £240 inc VAT

Important Notice to Prospective Buyers:

We draw your attention to the Special Conditions of Sale within the Legal Pack, referring to other charges in addition to the purchase price which may become payable. Such costs may include Search Fees, reimbursement of Sellers costs and Legal Fees, and Transfer Fees amongst others.

Additional Fees

Administration Charge - See above

Disbursements - Please see the legal pack for any disbursements listed that may become payable by the purchaser on completion.

View Larger Map

Disclaimer: The map preview provided above is for general guidance only and may not accurately reflect the exact location or surrounding buildings. Prospective buyers and interested parties are strongly advised to independently verify the precise location and surroundings before bidding.