For Sale By Auction | 12:00, 25 October 2023 | Lot 17

18 Nowell Terrace, Leeds, West Yorkshire • LS9 6HX

Sold

  • Terraced House
  • 4 Bedrooms

Call the team on 0113 393 3482 for more information

Auction Date

Wed 25/10/2023

Auction Time

12:00

Auction Venue

Live Stream

This four bedroom through terrcae is located on Nowell Terrace. Internally the property is in good condition. Currently tenanted the property is generating an income of £750 per month or £9,000 per annum. The property is located in the Harehills selective licensing area.

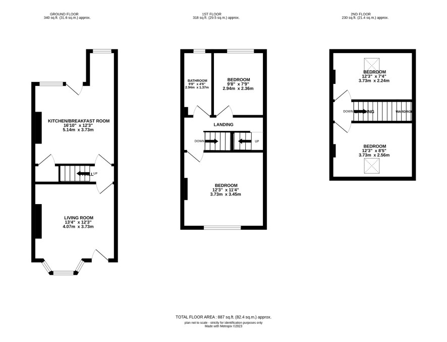
Ground Floor

Living room and kitchen diner.

First Floor

Two bedrooms and bathroom.

Second Floor

Two bedrooms.

Externally

Rear garden.

ADDITIONAL INFORMATION

Council Tax

Band A.

Tenure

Freehold.

Charges & Payments

In addition to the deposit Administration Charge: 0.9% inc VAT of the purchase price subject to a minimum of £1,500 inc VAT. Searches £240 inc VAT

Important Notice to Prospective Buyers:

We draw your attention to the Special Conditions of Sale within the Legal Pack, referring to other charges in addition to the purchase price which may become payable. Such costs may include Search Fees, reimbursement of Sellers costs and Legal Fees, and Transfer Fees amongst others.

Additional Fees

Administration Charge - See above

Disbursements - Please see the legal pack for any disbursements listed that may become payable by the purchaser on completion.

View Larger Map

Disclaimer: The map preview provided above is for general guidance only and may not accurately reflect the exact location or surrounding buildings. Prospective buyers and interested parties are strongly advised to independently verify the precise location and surroundings before bidding.