For Sale By Auction | 12:00, 25 October 2023 | Lot 45

24 Arthington View, Leeds, West Yorkshire • LS10 2ND

Sold

  • Terraced House
  • 2 Bedrooms

Call the team on 0113 393 3482 for more information

Auction Date

Wed 25/10/2023

Auction Time

12:00

Auction Venue

Live Stream

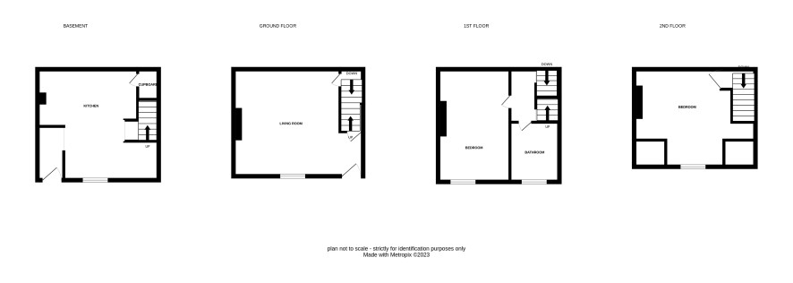
This spacious and two bedroom terrace comprises accommodation over four floors and is sure to appeal to any investors looking for the next addition to their portfolio. The kitchen appears to have been fitted very recently and just needs finishing off by the winning bidder. The property is located 2 miles to the South of Leeds city centre just of junction 5 of the M621.

Lower Ground Floor

Kitchen.

Ground Floor

Living room.

First Floor

Bedroom and bathroom.

Second Floor

Bedroom.

ADDITIONAL INFORMATION

Council Tax

Band A.

Tenure

Freehold.

Charges & Payments

In addition to the deposit Administration Charge: 0.9% inc VAT of the purchase price subject to a minimum of £1,500 inc VAT.

Important Notice to Prospective Buyers:

We draw your attention to the Special Conditions of Sale within the Legal Pack, referring to other charges in addition to the purchase price which may become payable. Such costs may include Search Fees, reimbursement of Sellers costs and Legal Fees, and Transfer Fees amongst others.

Additional Fees

Administration Charge - See above

Disbursements - Please see the legal pack for any disbursements listed that may become payable by the purchaser on completion.

View Larger Map

Disclaimer: The map preview provided above is for general guidance only and may not accurately reflect the exact location or surrounding buildings. Prospective buyers and interested parties are strongly advised to independently verify the precise location and surroundings before bidding.