For Sale By Auction | 12:00, 25 October 2023 | Lot 1

256 Burley Road, Leeds, West Yorkshire LS4 2LA

Sold

  • Terraced House
  • 5 Bedrooms

Call the team on 0113 393 3482 for more information

Auction Date

Wed 25/10/2023

Auction Time

12:00

Auction Venue

Live Stream

This spacious five bedroom through terrace is sure to whet the appetite of any developers looking for a real project. As you can see from the photographs, the property has been neglected in recent years but at the quoted guide price, offers a huge amount of potential. With its own access leading on to the front garden, the lower ground floor may also lend itself to residential conversion subject to the necessary consents being obtained. Externally it has a large rear garden with access to Vinery Road. The property is located in a sought after location of Burley with the park to the rear, train station less than half a mile away and Leeds city centre 1.3 miles to the East. Interested parties should be aware that the property has suffered from some structural movement however it appears a supporting wall was built on the gable end several years ago to help this. We have also been advised that a planning application to convert the property into 4 apartments was refused earlier this year. Buyers are advised to do their own research in this regard. Please note: A 14 day completion applies to this lot and the buyer will be required to pay the exchange deposit from cleared funds.

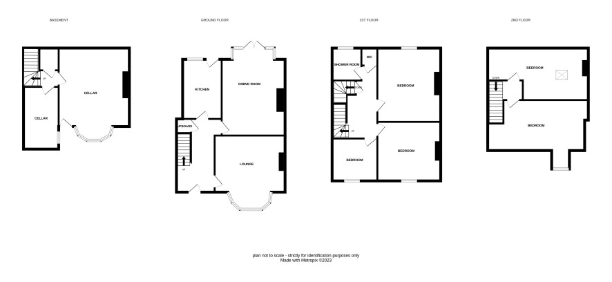
Basement

Cellar

Ground floor

Dining room, lounge and kitchen

First floor

3 bedrooms, shower room, W.C

Second floor

Two bedrooms

Additional Information

Council Tax

Leeds city council - Tax band B

Tenure

Freehold

Charges and Payments

In addition to the deposit Administration Charge: 0.9% inc VAT of the purchase price subject to a minimum of £1,500 inc VAT.

Important Notice to Prospective Buyers:

We draw your attention to the Special Conditions of Sale within the Legal Pack, referring to other charges in addition to the purchase price which may become payable. Such costs may include Search Fees, reimbursement of Sellers costs and Legal Fees, and Transfer Fees amongst others.

Additional Fees

Administration Charge - See above

Disbursements - Please see the legal pack for any disbursements listed that may become payable by the purchaser on completion.

View Larger Map

Disclaimer: The map preview provided above is for general guidance only and may not accurately reflect the exact location or surrounding buildings. Prospective buyers and interested parties are strongly advised to independently verify the precise location and surroundings before bidding.