For Sale By Auction | 12:00, 25 October 2023 | Lot 6

36 Kent Road, Pudsey, West Yorkshire • LS28 9BH

Sold

  • Terraced House
  • 3 Bedrooms

Call the team on 0113 393 3482 for more information

Auction Date

Wed 25/10/2023

Auction Time

12:00

Auction Venue

Live Stream

This spacious three bedroom through terrace is now in need of modernisation but is likely to appeal to anyone looking for a home they can add some value to. Externally the property has generous gardens to the front and rear with a healthy looking rhubarb patch in the latter. The property is located less than half a mile from Pudsey town centre, an area popular with homeowners and tenants alike. Buyers should be aware that the property has solar panels on the roof although the seller has advised us these have been fully paid for. An MCS Certificate will be provided within the legal pack.

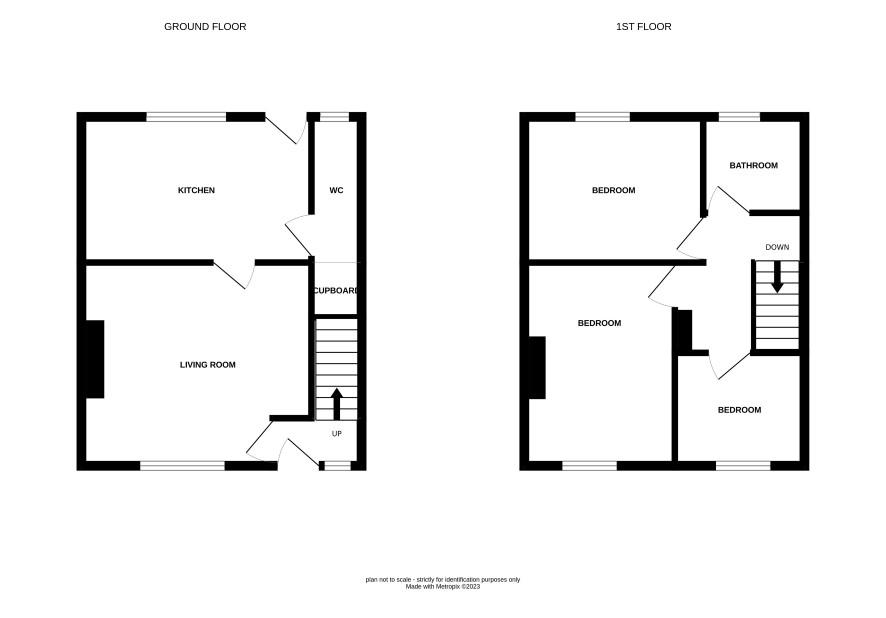
Ground floor

Living room, kitchen and W.C

First floor

Three bedrooms and bathroom

Additional Information

Council Tax

Leeds city council - Tax band B

Tenure

Freehold

Charges and Payments

In addition to the deposit Administration Charge: 0.9% inc VAT of the purchase price subject to a minimum of £1,500 inc VAT.

Important Notice to Prospective Buyers:

We draw your attention to the Special Conditions of Sale within the Legal Pack, referring to other charges in addition to the purchase price which may become payable. Such costs may include Search Fees, reimbursement of Sellers costs and Legal Fees, and Transfer Fees amongst others.

Additional Fees

Administration Charge - See above

Disbursements - Please see the legal pack for any disbursements listed that may become payable by the purchaser on completion.

View Larger Map

Disclaimer: The map preview provided above is for general guidance only and may not accurately reflect the exact location or surrounding buildings. Prospective buyers and interested parties are strongly advised to independently verify the precise location and surroundings before bidding.