For Sale By Auction | 12:00, 07 February 2024 | Lot 1

23 Lee Brigg, Normanton, Normanton, West Yorkshire WF6 2JJ

Sold

  • Terraced House
  • 1 Bedroom

Call the team on 0113 393 3482 for more information

Auction Date

Wed 07/02/2024

Auction Time

12:00

Auction Venue

Live Stream

This one bedroom through terrace property requires some internal modernisation and would make a good project or addition to a buy to let portfolio. The property is situated in this popular area within very easy reach of a good range of local shops, schools and recreational facilities. A broader range of amenities are available in the nearby centres of Normanton and Castleford and the national motorway network is readily accessible. The property will be sold as seen with all contents, fixtures and fittings included.

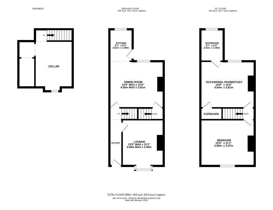
Lower Ground Floor

Cellar.

Ground Floor

Lounge, dining room and kitchen.

First Floor

Bedroom, room and bathroom.

ADDITIONAL INFORMATION

Council Tax

Band A.

Tenure

Freehold.

Charges & Payments

In addition to the deposit Administration Charge: 0.9% inc VAT of the purchase price subject to a minimum of £1,500 inc VAT. Buyers premium £900 inc VAT

Important Notice to Prospective Buyers:

We draw your attention to the Special Conditions of Sale within the Legal Pack, referring to other charges in addition to the purchase price which may become payable. Such costs may include Search Fees, reimbursement of Sellers costs and Legal Fees, and Transfer Fees amongst others.

Additional Fees

Administration Charge - See above

Disbursements - Please see the legal pack for any disbursements listed that may become payable by the purchaser on completion.

View Larger Map

Disclaimer: The map preview provided above is for general guidance only and may not accurately reflect the exact location or surrounding buildings. Prospective buyers and interested parties are strongly advised to independently verify the precise location and surroundings before bidding.