For Sale By Auction | 12:00, 07 February 2024 | Lot 36

93 Town Street, Horsforth, Leeds, West Yorkshire LS18 5BP

Sold

  • Retail Property (high street)

Call the team on 0113 393 3482 for more information

Auction Date

Wed 07/02/2024

Auction Time

12:00

Auction Venue

Live Stream

This vacant commercial property has been used as a hot food takeaway for many years but is now offered with vacant possession. Although the ground floor was trading until recently, the upper floors have been neglected for many years and may lend themselves to residential conversion subject to the necessary consents being obtained. Externally the property is street line to the front with a yard to the rear. The property is located on the busy Town Street of Horsforth, one of Leeds most popular suburbs and is sure to be of interest to both owners occupiers and investors. Interested parties should be aware that the property seems to have suffered from some structural movement and are advised to do their own research in this regard.

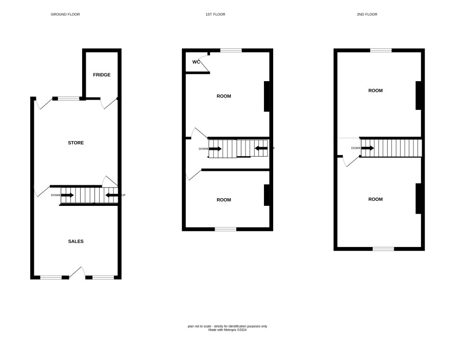
Ground Floor

Sales area, Store room & fridge area

First Floor

Two rooms and a WC

Second Floor

Two rooms

Additional Information

Council Tax

Leeds city council

Tenure

Freehold

Charges and Payments

In addition to the deposit Administration Charge: 0.9% inc VAT of the purchase price subject to a minimum of £1,500 inc VAT.

Important Notice to Prospective Buyers:

We draw your attention to the Special Conditions of Sale within the Legal Pack, referring to other charges in addition to the purchase price which may become payable. Such costs may include Search Fees, reimbursement of Sellers costs and Legal Fees, and Transfer Fees amongst others.

Additional Fees

Administration Charge - See above

Disbursements - Please see the legal pack for any disbursements listed that may become payable by the purchaser on completion.

View Larger Map

Disclaimer: The map preview provided above is for general guidance only and may not accurately reflect the exact location or surrounding buildings. Prospective buyers and interested parties are strongly advised to independently verify the precise location and surroundings before bidding.