For Sale By Auction | 12:00, 07 February 2024 | Lot 27

629 Dewsbury Road, Leeds, West Yorkshire LS11 5LF

Sold

  • Semi-Detached House
  • 3 Bedrooms

Call the team on 0113 393 3482 for more information

Auction Date

Wed 07/02/2024

Auction Time

12:00

Auction Venue

Live Stream

Three bedroom semi detached property with shared driveway, garage and gardens to front and rear in LS11. This will suit the buy-to-let landlord as the property has formed part of a housing association portfolio for many years and benefits from a central heating system and double glazing. Internally, there is accommodation over two floors with some renovation/redecoration required. The property is located in the area of Beeston, close to the amenities of Dewsbury Road and with good transport links to Leeds city centre.

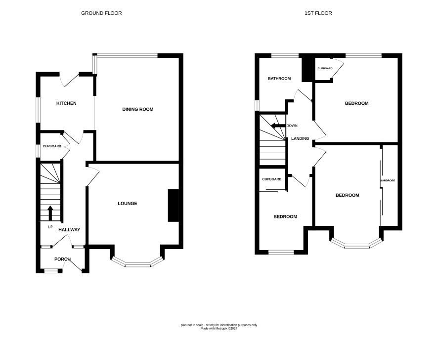
Ground Floor

Living room, dining room and kitchen

First Floor

Three bedrooms and a bathroom

Externally

Gardens to the front and rear. Shared driveway.

Additional Information

Council Tax

Leeds city council - Band B

Tenure

Freehold

Charges and Payments

In addition to the deposit Administration Charge: 0.9% inc VAT of the purchase price subject to a minimum of £1,500 inc VAT.

Important Notice to Prospective Buyers:

We draw your attention to the Special Conditions of Sale within the Legal Pack, referring to other charges in addition to the purchase price which may become payable. Such costs may include Search Fees, reimbursement of Sellers costs and Legal Fees, and Transfer Fees amongst others.

Additional Fees

Administration Charge - See above

Disbursements - Please see the legal pack for any disbursements listed that may become payable by the purchaser on completion.

View Larger Map

Disclaimer: The map preview provided above is for general guidance only and may not accurately reflect the exact location or surrounding buildings. Prospective buyers and interested parties are strongly advised to independently verify the precise location and surroundings before bidding.