For Sale By Auction | 12:00, 27 March 2024 | Lot 51

12 Harewood Way, Leeds, West Yorkshire, Leeds LS13 4QD

Sold

  • Detached House
  • 4 Bedrooms

Call the team on 0113 393 3482 for more information

Auction Date

Wed 27/03/2024

Auction Time

12:00

Auction Venue

Live Stream

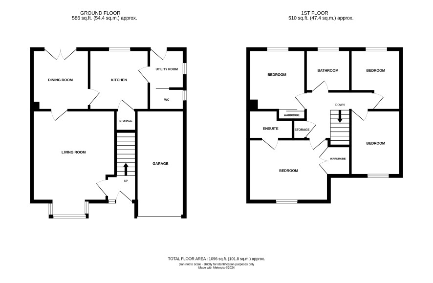
This four bedroom family home is located in Swinnow and would be ideal for a builder or an investor wanting to add value. Overall the property is in good internal and external condition and benefits from a driveway, garage and generous sized rear garden. The property is located between Pudsey and Bramley, close to the Leeds ring road and has easy access into Leeds and Bradford city centres. There are ample supermarkets, schools and local facilities in within a short drive. Interested parties should be aware that the property has suffered from some structural movement and buyers are advised to do their own research in this regard. ACCOMODATION Ground Floor Living room, dining room, kitchen, utility room, WC. First Floor Four bedrooms, (master en-suite) and bathroom Externally Integral garage, driveway and rear garden Additional Information Council Tax Leeds City Council - Band D Tenure Freehold Charges and Payments In addition to the deposit Administration Charge: 0.9% inc VAT of the purchase price subject to a minimum of £1,500 inc VAT. Searches £240 inc VAT Disbursements Any additional disbursements payable by the purchaser are yet to be confirmed by the vendor's solicitor. For more details, please see the legal pack. Guide Price Guides are provided as an indication of each seller's minimum expectation. They are not necessarily figures which a property will sell for and may change at any time prior to the auction. Each property will be offered subject to a Reserve (a figure below which the Auctioneer cannot sell the property during the auction) which we expect will be set within the Guide Range or no more than 10% above a single figure Guide.

Important Notice to Prospective Buyers:

We draw your attention to the Special Conditions of Sale within the Legal Pack, referring to other charges in addition to the purchase price which may become payable. Such costs may include Search Fees, reimbursement of Sellers costs and Legal Fees, and Transfer Fees amongst others.

Additional Fees

Administration Charge - See above

Disbursements - Please see the legal pack for any disbursements listed that may become payable by the purchaser on completion.

View Larger Map

Disclaimer: The map preview provided above is for general guidance only and may not accurately reflect the exact location or surrounding buildings. Prospective buyers and interested parties are strongly advised to independently verify the precise location and surroundings before bidding.