For Sale By Auction | 12:00, 27 March 2024 | Lot 2

24 Shaw Lane Gardens, Guiseley, Leeds, Leeds , West Yorkshire LS20 9JH

Sold

  • Semi-Detached House
  • 4 Bedrooms

Call the team on 0113 393 3482 for more information

Auction Date

Wed 27/03/2024

Auction Time

12:00

Auction Venue

Live Stream

This substantial 3 to 4 bedroom semi-detached dormer bungalow is sure to be of interest to any developers looking for a property with huge potential. Sitting on a sought after street and benefitting from a generous rear garden, the property will need to be refurbished and possibly extended as many of the neighbours have done. The property is in an enviable location with the shops and restaurants of Guiseley less than half a mile in one direction with open countryside in the other direction.

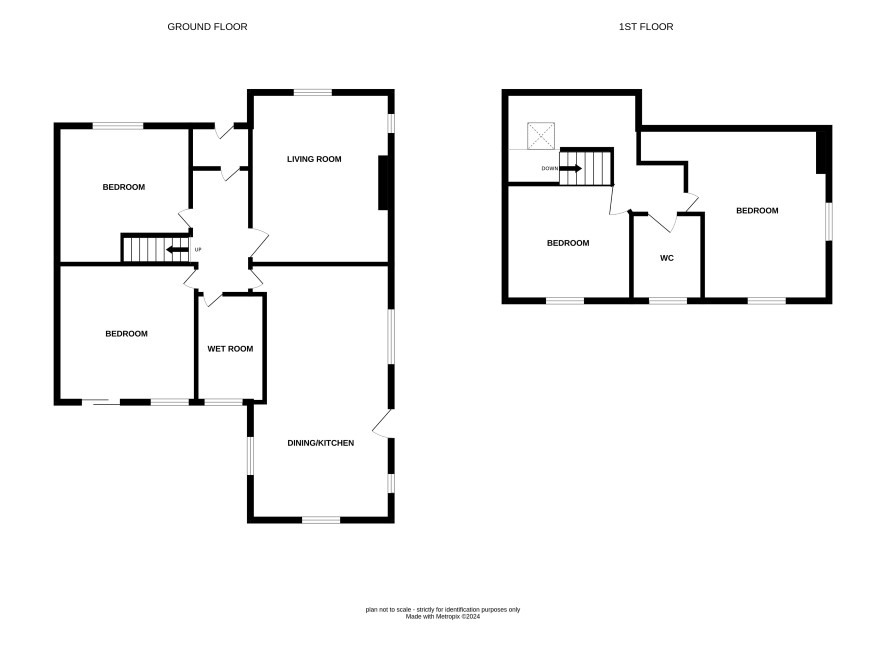
Ground Floor

? Dining/kitchen, living room, two bedrooms and wet room to the ground floor.

First Floor

Two bedrooms and wc to the first floor.

Externally

Generous rear garden.

Additional Information

Council Tax

Leeds city council - Band D

Tenure

Freehold

Charges and Payments

In addition to the deposit Administration Charge: 0.9% inc VAT of the purchase price subject to a minimum of £1,500 inc VAT. Searches £240 inc VAT

Important Notice to Prospective Buyers:

We draw your attention to the Special Conditions of Sale within the Legal Pack, referring to other charges in addition to the purchase price which may become payable. Such costs may include Search Fees, reimbursement of Sellers costs and Legal Fees, and Transfer Fees amongst others.

Additional Fees

Administration Charge - See above

Disbursements - Please see the legal pack for any disbursements listed that may become payable by the purchaser on completion.

View Larger Map

Disclaimer: The map preview provided above is for general guidance only and may not accurately reflect the exact location or surrounding buildings. Prospective buyers and interested parties are strongly advised to independently verify the precise location and surroundings before bidding.