For Sale By Auction | 12:00, 27 March 2024 | Lot 49

14 Chandos Terrace, Leeds, West Yorkshire, Leeds LS8 1QT

Sold

  • Semi-Detached House
  • 3 Bedrooms

Call the team on 0113 393 3482 for more information

Auction Date

Wed 27/03/2024

Auction Time

12:00

Auction Venue

Live Stream

This three to four bedroom dormer bungalow is sure to appeal to any investors and developers looking for their next project. The property is in need of complete renovation but as a result, comes with huge potential. Externally the property has a multi car driveway and garage to the side with gardens front and rear. The property is located on a cul de sac in Gledhow/Roundhay, a highly sought after and prestigious area only three miles north of Leeds city centre. It?s only a short distance from Roundhay Park and all the amenities within Roundhay, Oakwood, Chapel Allerton and Moortown. Good schools, dentists and doctors are also close by. Interested parties are invited to call the office and arrange a viewing. No other photos have been included in order to respect the seller's privacy.

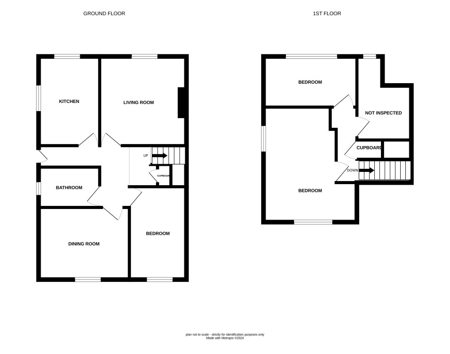
Ground Floor

Living room, kitchen, dining room, bedroom and bathroom to the ground floor.

First Floor

Two bedrooms and room (not inspected).

Externally

Driveway, garage and gardens to the front and rear.

Additional Information

Council Tax

Leeds city council - Band C

Tenure

Freehold

Charges and Payments

In addition to the deposit Administration Charge: 0.9% inc VAT of the purchase price subject to a minimum of £1,500 inc VAT. Searches £240 inc VAT

Important Notice to Prospective Buyers:

We draw your attention to the Special Conditions of Sale within the Legal Pack, referring to other charges in addition to the purchase price which may become payable. Such costs may include Search Fees, reimbursement of Sellers costs and Legal Fees, and Transfer Fees amongst others.

Additional Fees

Administration Charge - See above

Disbursements - Please see the legal pack for any disbursements listed that may become payable by the purchaser on completion.

View Larger Map

Disclaimer: The map preview provided above is for general guidance only and may not accurately reflect the exact location or surrounding buildings. Prospective buyers and interested parties are strongly advised to independently verify the precise location and surroundings before bidding.