For Sale By Auction | 12:00, 27 March 2024 | Lot 22

1-3 The Mount, Normanton, West Yorkshire WF6 1NU

Sold After

  • Detached House
  • 10 Bedrooms

Call the team on 0113 393 3482 for more information

Auction Date

Wed 27/03/2024

Auction Time

12:00

Auction Venue

Live Stream

Once in a lifetime opportunity to purchase this dream renovation project. Offered for sale is a private driveway leading to two spacious four bedroom terrace properties, a two bedroom detached property, large double garage and the surrounding garden grounds. All properties require full renovation throughout, however the buyer would be able to save a great deal of time and money with the ease of the all the properties being so close to each other. The property is situated in this popular residential area on the fringe of the town centre of Normanton which offers a good range of local shops, schools and recreational facilities. Normanton has it's own railway station and ready access to the motorway network.

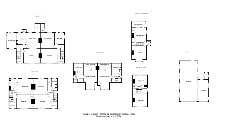
1 The Mount

Ground Floor: Hallway, lounge, dining room, kitchen, wc. First Floor: Three bedrooms, bathroom, wc. Second Floor: Dorma bedroom, study, stoage room.

2 The Mount

Ground Floor: Hallway, lounge, dining room, kitchen, wc, porch, outside store. First Floor: Three bedrooms, bathroom, wc. Second Floor: Dorma bedroom, stoage room.

3 The Mount

Ground Floor: Entrance hall, lounge, kitchen/diner, conservatory. First Floor: Two bedrooms and bathroom.

Externally

Ample parking and a large double garage, gardens

ADDITIONAL INFORMATION

Council Tax

Each property is Band D

Tenure

Freehold

Charges & Payments

In addition to the deposit Administration Charge: 0.9% inc VAT of the purchase price subject to a minimum of £1,500 inc VAT.

Important Notice to Prospective Buyers:

We draw your attention to the Special Conditions of Sale within the Legal Pack, referring to other charges in addition to the purchase price which may become payable. Such costs may include Search Fees, reimbursement of Sellers costs and Legal Fees, and Transfer Fees amongst others.

Additional Fees

Administration Charge - See above

Disbursements - Please see the legal pack for any disbursements listed that may become payable by the purchaser on completion.

View Larger Map

Disclaimer: The map preview provided above is for general guidance only and may not accurately reflect the exact location or surrounding buildings. Prospective buyers and interested parties are strongly advised to independently verify the precise location and surroundings before bidding.