For Sale By Auction | 12:00, 27 March 2024 | Lot 46

Flat 1-3 13 Hovingham Mount, Leeds, West Yorkshire, Leeds LS8 3RB

Sold

  • Terraced House
  • 3 Bedrooms

Call the team on 0113 393 3482 for more information

Auction Date

Wed 27/03/2024

Auction Time

12:00

Auction Venue

Live Stream

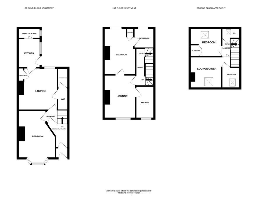
Terrace property separated into three self-contained one bedroom apartments. Apartments 1 & 3 are currently tenanted generating a combined gross rental income of £7440 per annum. Apartment 2 is currently vacant and requires renovation throughout. Please note all apartments are separately metered. The property is a few minutes from local amenities on Harehills Lane and Roundhay Road, including a variety of shops and restaurants. There are public transport links into Leeds city centre and surrounding areas. Interested parties should be aware that whilst the top floor apartment is currently generating an active income, it would appear that the property may have not been lived in for a while and also has pigeons in situ. Buyers are advised to do their own research in this regard.

Ground Floor - Flat 1

Lounge, kitchen, bedroom, shower room, w/c.

First Floor - Flat 2

Lounge, kitchen, bedroom, bathroom.

Second Floor - Flat 3

Lounge/kitchen, bedroom, bathroom, w/c.

Additional Information

Council Tax

Each flat is Band A

Tenure

Freehold

Charges and Payments

In addition to the deposit Administration Charge: 0.9% inc VAT of the purchase price subject to a minimum of £1,500 inc VAT. Searches: £240 inc VAT

Important Notice to Prospective Buyers:

We draw your attention to the Special Conditions of Sale within the Legal Pack, referring to other charges in addition to the purchase price which may become payable. Such costs may include Search Fees, reimbursement of Sellers costs and Legal Fees, and Transfer Fees amongst others.

Additional Fees

Administration Charge - See above

Disbursements - Please see the legal pack for any disbursements listed that may become payable by the purchaser on completion.

View Larger Map

Disclaimer: The map preview provided above is for general guidance only and may not accurately reflect the exact location or surrounding buildings. Prospective buyers and interested parties are strongly advised to independently verify the precise location and surroundings before bidding.