For Sale By Auction | 12:00, 27 March 2024 | Lot 6

2 Park View Terrace, Rawdon, Leeds, Leeds , West Yorkshire LS19 6ES

Sold

  • Terraced House
  • 3 Bedrooms

Call the team on 0113 393 3482 for more information

Auction Date

Wed 27/03/2024

Auction Time

12:00

Auction Venue

Live Stream

This three bedroom through terrace is in need of some renovation but is likely to make an excellent project for any would be developers. Externally there are gardens to the front and rear. The property is located in this most sought after of locations in the village of Rawdon, just a short walk from a number of shops, amenities and Benton Park school. The property is close to regular bus routes providing ready access to Leeds City Centre and has three train stations within a 10-minute drive. The property is also under a two miles away from Leeds Bradford Airport. The successful purchaser will also be required to pay 4% of the purchase price upon completion to Leeds City Council. Please refer to the legal pack for details.

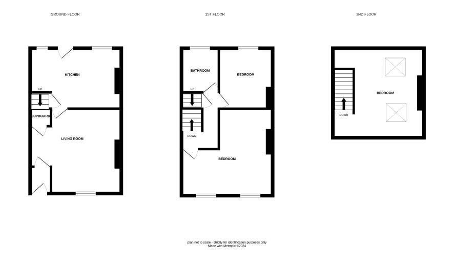
Ground Floor

Kitchen and living room.

First Floor

Two bedrooms and bathroom.

Second Floor

Bedroom.

ADDITIONAL INFORMATION

Council Tax

Band C.

Tenure

Freehold.

Charges & Payments

In addition to the deposit Administration Charge: 0.9% inc VAT of the purchase price subject to a minimum of £1,500 inc VAT. Buyer's Premium: 1.8% inc VAT (min £1,800 inc VAT)

Important Notice to Prospective Buyers:

We draw your attention to the Special Conditions of Sale within the Legal Pack, referring to other charges in addition to the purchase price which may become payable. Such costs may include Search Fees, reimbursement of Sellers costs and Legal Fees, and Transfer Fees amongst others.

Additional Fees

Administration Charge - See above

Disbursements - Please see the legal pack for any disbursements listed that may become payable by the purchaser on completion.

View Larger Map

Disclaimer: The map preview provided above is for general guidance only and may not accurately reflect the exact location or surrounding buildings. Prospective buyers and interested parties are strongly advised to independently verify the precise location and surroundings before bidding.