For Sale By Auction | 12:00, 10 July 2024 | Lot 3

7 Stanley Place, Leeds, West Yorkshire, Leeds LS9 7BP

Sold

  • Terraced House
  • 2 Bedrooms

Call the team on 0113 393 3482 for more information

Auction Date

Wed 10/07/2024

Auction Time

12:00

Auction Venue

Live Stream

This is a two bedroom through terrace in Harehills. This is ideal for buy to let landlords and investors looking to add value. The house is in need of a full refurbishment and has potential for reconfiguration. There is a yard to the rear. The property is located in Harehills, a popular area 1.5 miles North West of Leeds city centre. There are local shops, schools, St James Hospital and bus routes within a short distance.

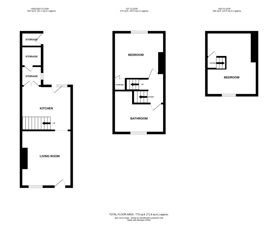
Ground Floor

Living room, kitchen and storage

First Floor

Bedroom and bathroom

Second Floor

Further bedroom

Externally

Yard to the rear

Additional Information

Council Tax

Leeds city council - Band A

Tenure

Freehold

Charges and Payments

In addition to the deposit Administration Charge: 0.9% inc VAT of the purchase price subject to a minimum of £1,500 inc VAT. Searches £300 inc VAT

Important Notice to Prospective Buyers:

We draw your attention to the Special Conditions of Sale within the Legal Pack, referring to other charges in addition to the purchase price which may become payable. Such costs may include Search Fees, reimbursement of Sellers costs and Legal Fees, and Transfer Fees amongst others.

Additional Fees

Administration Charge - See above

Disbursements - Please see the legal pack for any disbursements listed that may become payable by the purchaser on completion.

View Larger Map

Disclaimer: The map preview provided above is for general guidance only and may not accurately reflect the exact location or surrounding buildings. Prospective buyers and interested parties are strongly advised to independently verify the precise location and surroundings before bidding.