For Sale By Auction | 12:00, 10 July 2024 | Lot 26

509 Skipton Road, Keighley, West Yorkshire, Keighley BD20 6EH

Sold

  • Apartment
  • 2 Bedrooms

Call the team on 0113 393 3482 for more information

Auction Date

Wed 10/07/2024

Auction Time

12:00

Auction Venue

Live Stream

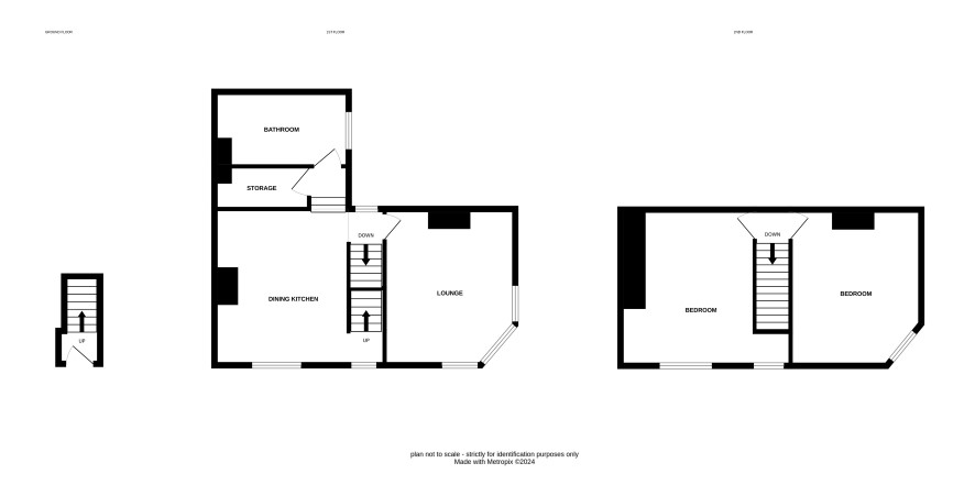
This two bedroom duplex apartment, sold with vacant possession, is set over the first and second floors and whilst the property would benefit from some internal renovation, it would also be a great addition to a rental portfolio. Similar apartments in the area have previously been marketed at £600 per calendar month. Situated in a popular residential location offering good access to Keighley town centre. which offers a wide range of shops and amenities including bus and train stations offering access to other local towns and cities. Whilst a share of the freehold for the property is being sold, please note there is also a lease in place with the below details: Length of lease - 999 years from 21st January 2005 Peppercorn ground rent No service charge.

First Floor

Lounge, dining kitchen and bathroom

Second Floor

Two bedrooms

Additional Information

Council Tax

Bradford Metropolitan District Council - Band A

Tenure

Leasehold

Disclaimer

Any information in relation to the length of lease, service charge, ground rent and council tax has been confirmed by our sellers. We advise buyers to make their own enquiries through their solicitors to verify that the information provided is accurate and not been subject to any change.

Charges and Payments

In addition to the deposit Administration Charge: 0.9% inc VAT of the purchase price subject to a minimum of £1,500 inc VAT. Searches £300 inc VAT

Important Notice to Prospective Buyers:

We draw your attention to the Special Conditions of Sale within the Legal Pack, referring to other charges in addition to the purchase price which may become payable. Such costs may include Search Fees, reimbursement of Sellers costs and Legal Fees, and Transfer Fees amongst others.

Additional Fees

Administration Charge - See above

Disbursements - Please see the legal pack for any disbursements listed that may become payable by the purchaser on completion.

View Larger Map

Disclaimer: The map preview provided above is for general guidance only and may not accurately reflect the exact location or surrounding buildings. Prospective buyers and interested parties are strongly advised to independently verify the precise location and surroundings before bidding.