For Sale By Auction | 12:00, 10 July 2024 | Lot 17

11 Upper Calton Street, Keighley, West Yorkshire, Keighley BD21 1HF

Sold

  • Terraced House
  • 3 Bedrooms

Call the team on 0113 393 3482 for more information

Auction Date

Wed 10/07/2024

Auction Time

12:00

Auction Venue

Live Stream

This three bedroom through terrace is offered for sale via auction. The property requires full renovation throughout, however, is currently a blank canvas for works to commence. The property would make a great addition to a rental portfolio once completed. The property is well placed for access to local schools, amenities, and Keighley town centre. EPC rating: G. Please note: a 14 day completion applies to this lot.

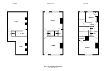
Lower Ground Floor

Cellar

Ground Floor

Lounge and kitchen

First Floor

Two bedrooms and a bathroom

Second Floor

Bedroom

Externally

Yard to the rear

Additional Information

Council Tax

Bradford - Band A

Tenure

Freehold

Charges and Payments

In addition to the deposit Administration Charge: 0.9% inc VAT of the purchase price subject to a minimum of £1,500 inc VAT. Buyer's Premium: £1,200 inc VAT.

Important Notice to Prospective Buyers:

We draw your attention to the Special Conditions of Sale within the Legal Pack, referring to other charges in addition to the purchase price which may become payable. Such costs may include Search Fees, reimbursement of Sellers costs and Legal Fees, and Transfer Fees amongst others.

Additional Fees

Administration Charge - See above

Disbursements - Please see the legal pack for any disbursements listed that may become payable by the purchaser on completion.

View Larger Map

Disclaimer: The map preview provided above is for general guidance only and may not accurately reflect the exact location or surrounding buildings. Prospective buyers and interested parties are strongly advised to independently verify the precise location and surroundings before bidding.