Sold Prior | Lot 7

Flats 1-5, 48 Conference Road, Leeds, West Yorkshire LS12 3DX

Sold Prior

  • Semi-Detached House
  • 5 Bedrooms

Call the team on 0113 393 3482 for more information

Auction Date

Wed 10/07/2024

Auction Time

12:00

Auction Venue

Live Stream

This is a large semi detached house that is split into five self contained flats. This would be ideal for a buy to let landlord wanting to add a high yielding property to their portfolio. Overall the property is in good condition and has received a Certificate of Lawful Existing Use of Development on 8th September 2022. Flat 1 - Studio Flat - Vacant - Tenancy agreed at £500 pcm. Commencing on 25/06/2024. Flat 2 - Studio Flat - Tenanted - £600 pcm Flat 3 - Studio Flat - Tenanted - £615 pcm Flat 4 - Studio Flat - £550 pcm Flat 5 - Vacant - estimated to achieve £700 pcm Total income currently is £1,765pcm and £2,265 when the new tenancy commences. The property is located in Armley, located 3 miles west of Leeds City Centre. In close proximity are schools, bus routes, supermarkets and Leeds ring road. This is a high rental demand area.

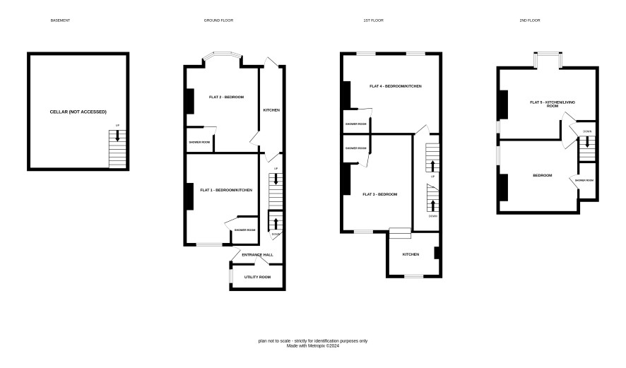
Ground Floor

Shared utility room, Flat 1 - Bedroom/kitchen and shower room Flat 2 - Bedroom/kicthen and shower room

First Floor

Flat 3 - Bedroom/kitchen and shower room Flat 4 - Bedrooom/kitchen and shower room

Second Floor

Flat 5 - Bedroom/kitchen and shower room

Additional Information

Council Tax

Leeds city council

Tenure

Freehold

Charges and Payments

In addition to the deposit Administration Charge: 0.9% inc VAT of the purchase price subject to a minimum of £1,500 inc VAT. Searches £300 inc VAT

Important Notice to Prospective Buyers:

We draw your attention to the Special Conditions of Sale within the Legal Pack, referring to other charges in addition to the purchase price which may become payable. Such costs may include Search Fees, reimbursement of Sellers costs and Legal Fees, and Transfer Fees amongst others.

Additional Fees

Administration Charge - See above

Disbursements - Please see the legal pack for any disbursements listed that may become payable by the purchaser on completion.

View Larger Map

Disclaimer: The map preview provided above is for general guidance only and may not accurately reflect the exact location or surrounding buildings. Prospective buyers and interested parties are strongly advised to independently verify the precise location and surroundings before bidding.