For Sale By Auction | 12:00, 10 July 2024 | Lot 23

21 Dorset Terrace, Leeds, West Yorkshire, Leeds LS8 3QR

Sold

  • House (unspecified)

Call the team on 0113 393 3482 for more information

Auction Date

Wed 10/07/2024

Auction Time

12:00

Auction Venue

Live Stream

This through terrace currently let out as three separate apartments is offered for sale via traditional auction. Whilst the property would benefit from some internal improvement it is currently fully occupied generating a gross rental income of £18,720 per annum reflecting over a 17.8% gross yield return based on the guide price. This property would be a great addition to a rental portfolio. Located in the selective license area of Harehills, close to local amenities and shops, Leeds City Centre and within walking distance of St. James's Hospital.

Lower Ground Floor

Cellar - accessed externally - not inspected.

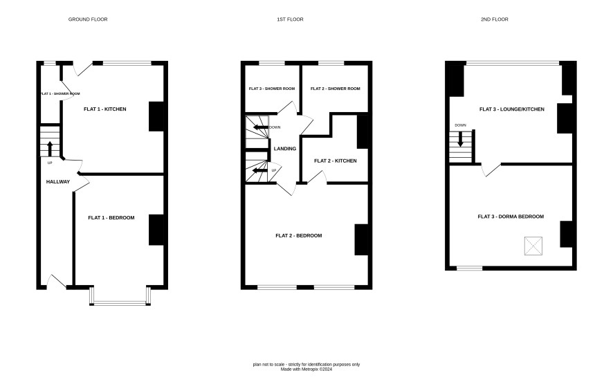
Ground Floor

Kitchen, bedroom and shower room.

First Floor

Kitchen, bedroom and 2 x shower room.

Second Floor

Kitchen/lounge area and bedroom.

Externally

Front and rear garden.

ADDITIONAL INFORMATION

Council Tax

Band A.

Tenure

Freehold.

Charges & Payments

In addition to the deposit Administration Charge: 0.9% inc VAT of the purchase price subject to a minimum of £1,500 inc VAT. Searches £300 inc VAT

Important Notice to Prospective Buyers:

We draw your attention to the Special Conditions of Sale within the Legal Pack, referring to other charges in addition to the purchase price which may become payable. Such costs may include Search Fees, reimbursement of Sellers costs and Legal Fees, and Transfer Fees amongst others.

Additional Fees

Administration Charge - See above

Disbursements - Please see the legal pack for any disbursements listed that may become payable by the purchaser on completion.

View Larger Map

Disclaimer: The map preview provided above is for general guidance only and may not accurately reflect the exact location or surrounding buildings. Prospective buyers and interested parties are strongly advised to independently verify the precise location and surroundings before bidding.