For Sale By Auction | 12:00, 10 July 2024 | Lot 42

119 Heckmondwike Road, Dewsbury, West Yorkshire, Dewsbury WF13 3NT

Sold

  • House (unspecified)
  • 2 Bedrooms

Call the team on 0113 393 3482 for more information

Auction Date

Wed 10/07/2024

Auction Time

12:00

Auction Venue

Live Stream

This mixed used property comprises a ground floor retail unit with self-contained two bedroom flat above. Each of the units are let to longstanding tenants with the annual income produced totalling £11,952. This is surely going to whet the appetite of any investors in the area as, based on the guide price, it equates to an impressive return of 24%! The property is located in the Dewsbury Moor area with Dewsbury town centre just 1.3 miles away.

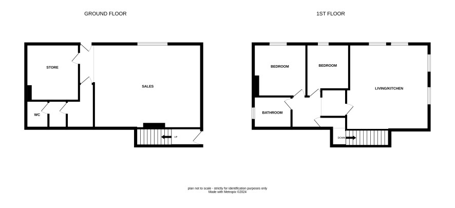
Ground Floor

Sales room, store room and wc.

First Floor

Living/kitchen, two bedrooms and bathroom.

ADDITIONAL INFORMATION

Council Tax

TBC.

Tenure

Freehold.

Charges & Payments

In addition to the deposit Administration Charge: 0.9% inc VAT of the purchase price subject to a minimum of £1,500 inc VAT.

Important Notice to Prospective Buyers:

We draw your attention to the Special Conditions of Sale within the Legal Pack, referring to other charges in addition to the purchase price which may become payable. Such costs may include Search Fees, reimbursement of Sellers costs and Legal Fees, and Transfer Fees amongst others.

Additional Fees

Administration Charge - See above

Disbursements - Please see the legal pack for any disbursements listed that may become payable by the purchaser on completion.

View Larger Map

Disclaimer: The map preview provided above is for general guidance only and may not accurately reflect the exact location or surrounding buildings. Prospective buyers and interested parties are strongly advised to independently verify the precise location and surroundings before bidding.