For Sale By Auction | 12:00, 11 September 2024 | Lot 1

Maestro House & Maestro Club, Bradley Avenue, Castleford, West Yorkshire WF10 1EY

Sold

  • Detached House
  • 3 Bedrooms

Call the team on 0113 393 3482 for more information

Auction Date

Wed 11/09/2024

Auction Time

12:00

Auction Venue

Live Stream

This three bedroom detached property in addition to the derelict former Maestro Clubhouse is offered for sale via traditional auction. The detached property requires full renovation throughout with the former club having expired planning permission for 4 x three-bedroom town houses with parking and outside space. For further information please refer to Wakefield Planning Portal using reference 19/02827/FUL. We believe the full site to be in the region of 0.25 acres. Located on Bradley Avenue, this residential street is ideally placed for local shopping and transport amenities at Castleford town centre. Xscape, the shopping outlet at Junction 32 and local motorway links are also easily accessible, making this an ideal property for the commuter who is looking to travel further afield.

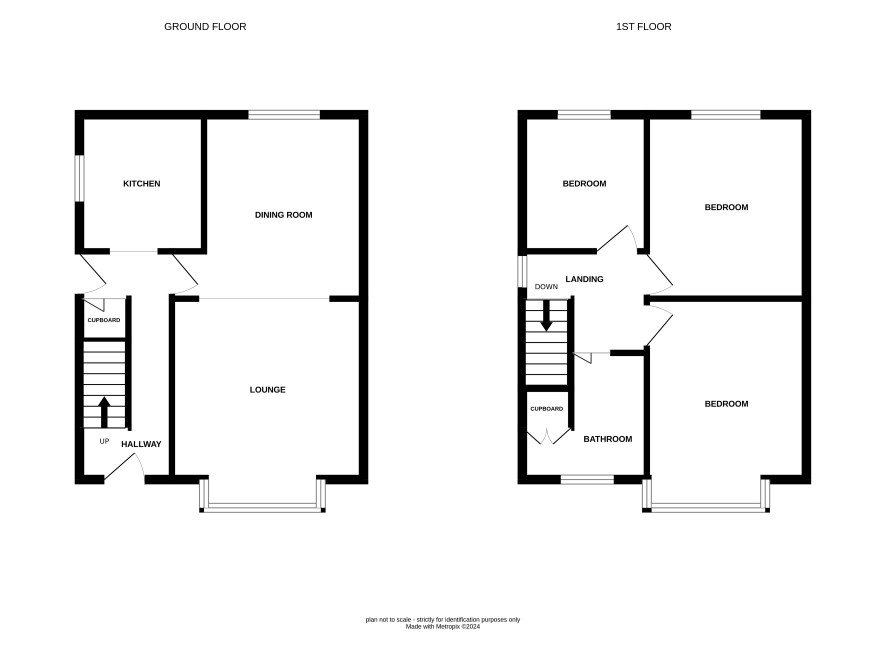
Ground Floor (house)

Lounge, dining room and kitchen

First Floor (house)

Three bedrooms and a bathroom

Externally (house)

Parking and outside space to the front

Additional Information

Council Tax (house)

Wakefield - Band B

Tenure

Freehold

Charges and Payments

In addition to the deposit Administration Charge: 0.9% inc VAT of the purchase price subject to a minimum of £1,500 inc VAT.

Important Notice to Prospective Buyers:

We draw your attention to the Special Conditions of Sale within the Legal Pack, referring to other charges in addition to the purchase price which may become payable. Such costs may include Search Fees, reimbursement of Sellers costs and Legal Fees, and Transfer Fees amongst others.

Additional Fees

Administration Charge - See above

Disbursements - Please see the legal pack for any disbursements listed that may become payable by the purchaser on completion.

View Larger Map

Disclaimer: The map preview provided above is for general guidance only and may not accurately reflect the exact location or surrounding buildings. Prospective buyers and interested parties are strongly advised to independently verify the precise location and surroundings before bidding.