Sold Prior | Lot 4

Wood Villa, 1 Tanshelf Drive, Pontefract, West Yorkshire WF8 4DH

Sold Prior

  • Detached House
  • 3 Bedrooms

Call the team on 0113 393 3482 for more information

Auction Date

Wed 11/09/2024

Auction Time

12:00

Auction Venue

Live Stream

This is a characterful three bedroom detached house in the heart of Pontefract and would be ideal for a developer or investor. This unique property is a former Quakers house built in 1874 and benefits from a large rear garden, garage and out buildings. The property requires a full refurbishment and has opportunity for reconfiguration. The property is located only 0.5 miles from Pontefract town centre where there are shops, restaurants, supermarkets and local amenities. There are useful transport links with Pontefract Tanshelf train station and bus station only a short walk. There is also easy access to the motorway network.

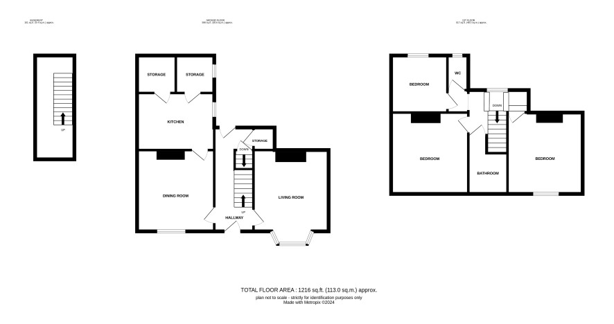
Lower Ground Floor

Basement (no external access)

Ground Floor

Living room, dining room, kitchen and storage rooms

First Floor

Three bedrooms, WC and bathroom

Externally

Garage and rear gardens

Additional Information

Council Tax

Wakefield - Band C

Tenure

Freehold

Charges and Payments

In addition to the deposit Administration Charge: 0.9% inc VAT of the purchase price subject to a minimum of £1,500 inc VAT. Searches £300 inc VAT

Important Notice to Prospective Buyers:

We draw your attention to the Special Conditions of Sale within the Legal Pack, referring to other charges in addition to the purchase price which may become payable. Such costs may include Search Fees, reimbursement of Sellers costs and Legal Fees, and Transfer Fees amongst others.

Additional Fees

Administration Charge - See above

Disbursements - Please see the legal pack for any disbursements listed that may become payable by the purchaser on completion.

View Larger Map

Disclaimer: The map preview provided above is for general guidance only and may not accurately reflect the exact location or surrounding buildings. Prospective buyers and interested parties are strongly advised to independently verify the precise location and surroundings before bidding.