For Sale By Auction | 12:00, 11 September 2024 | Lot 7

25 Doe Quarry Terrace, Dinnington, Sheffield , South Yorkshire S25 2NP

Sold

  • Terraced House
  • 3 Bedrooms

Call the team on 0113 393 3482 for more information

Auction Date

Wed 11/09/2024

Auction Time

12:00

Auction Venue

Live Stream

This three bedroom mid-terrace house would be a great project for an investor. It's in a dated condition throughout so requires extensive refurbishment and potential for reconfiguration. To the rear is an enclosed yard and a shared yard to the front. Dinnington is a town east of Sheffield and south of Doncaster with plenty of amenities including supermarkets, leisure facilities, schools and shops.

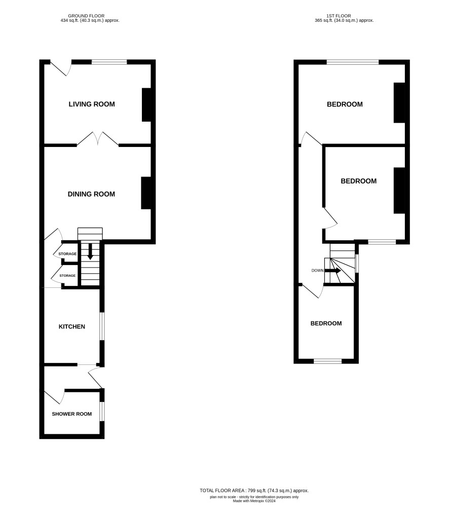
Ground Floor

Living room, dining room, kitchen and shower room

First Floor

Three bedrooms

Externally

Rear yard

Additional Information

Council Tax

Rotherham - Band A

Tenure

Freehold

Charges and Payments

In addition to the deposit Administration Charge: 0.9% inc VAT of the purchase price subject to a minimum of £1,500 inc VAT.

Important Notice to Prospective Buyers:

We draw your attention to the Special Conditions of Sale within the Legal Pack, referring to other charges in addition to the purchase price which may become payable. Such costs may include Search Fees, reimbursement of Sellers costs and Legal Fees, and Transfer Fees amongst others.

Additional Fees

Administration Charge - See above

Disbursements - Please see the legal pack for any disbursements listed that may become payable by the purchaser on completion.

View Larger Map

Disclaimer: The map preview provided above is for general guidance only and may not accurately reflect the exact location or surrounding buildings. Prospective buyers and interested parties are strongly advised to independently verify the precise location and surroundings before bidding.