For Sale By Auction | 12:00, 11 September 2024 | Lot 11

Flats 2 & 2a Thomas Street, Hemsworth, Pontefract, West Yorkshire WF9 4AY

Sold

  • Terraced House
  • 2 Bedrooms

Call the team on 0113 393 3482 for more information

Auction Date

Wed 11/09/2024

Auction Time

12:00

Auction Venue

Live Stream

This freehold end-terrace property converted into two self-contained one bedroom apartments is offered for sale via traditional auction. Both apartments are currently tenanted generating a gross rental income of £9,000 per annum which reflects a 11.25% gross yield return based on the guide price. This property is a great addition to a rental portfolio. Hemsworth's town centre is a 0.7 mile walk from the property and here you will find an array of supermarkets, shops, pubs and restaurants.

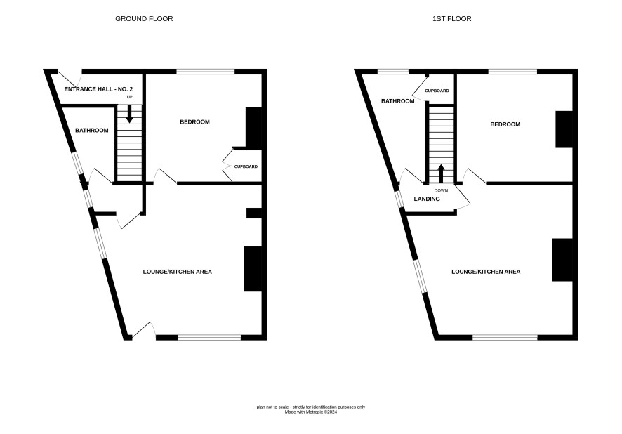
Ground Floor

Open plan living area, bedroom and bathroom.

First Floor

Open plan living area, bedroom and bathroom

Additional Information

Council Tax

Wakefield - Both Flats Band A

Tenure

Freehold

Charges and Payments

In addition to the deposit Administration Charge: 0.9% inc VAT of the purchase price subject to a minimum of £1,500 inc VAT. Searches £300 inc VAT

Important Notice to Prospective Buyers:

We draw your attention to the Special Conditions of Sale within the Legal Pack, referring to other charges in addition to the purchase price which may become payable. Such costs may include Search Fees, reimbursement of Sellers costs and Legal Fees, and Transfer Fees amongst others.

Additional Fees

Administration Charge - See above

Disbursements - Please see the legal pack for any disbursements listed that may become payable by the purchaser on completion.

View Larger Map

Disclaimer: The map preview provided above is for general guidance only and may not accurately reflect the exact location or surrounding buildings. Prospective buyers and interested parties are strongly advised to independently verify the precise location and surroundings before bidding.