For Sale By Auction | 12:00, 11 September 2024 | Lot 53

8 Lincoln Road, Leed, Leeds , West Yorkshire LS9 7NP

Sold

  • Terraced House
  • 3 Bedrooms

Call the team on 0113 393 3482 for more information

Auction Date

Wed 11/09/2024

Auction Time

12:00

Auction Venue

Live Stream

This three-bedroom mid terrace property with rear garden is offered for sale via traditional auction. Whilst the property has been well looked after, internally the property does require full refurbishment to bring this up to a modern standard. This house would make a great renovation project and addition to a rental portfolio upon completion. The property is close to many local amenities such as public houses, retail shops, supermarkets, schools, parks and St. James hospital. Well located for networks into Leeds city centre and surrounding towns and villages making it a great spot for commuters. We understand this house is of non-standard construction and buyers are advised to do their own research in this regard.

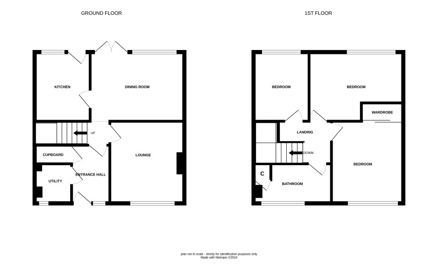
Ground Floor

Lounge, dining room, kitchen and utility room

First Floor

Three bedrooms and a bathroom

Externally

Gardens to the front and rear

Additional Information

Council Tax

Leeds city council - Band A

Tenure

Freehold

Charges and Payments

In addition to the deposit Administration Charge: 0.9% inc VAT of the purchase price subject to a minimum of £1,500 inc VAT. Searches £300 inc VAT

Important Notice to Prospective Buyers:

We draw your attention to the Special Conditions of Sale within the Legal Pack, referring to other charges in addition to the purchase price which may become payable. Such costs may include Search Fees, reimbursement of Sellers costs and Legal Fees, and Transfer Fees amongst others.

Additional Fees

Administration Charge - See above

Disbursements - Please see the legal pack for any disbursements listed that may become payable by the purchaser on completion.

View Larger Map

Disclaimer: The map preview provided above is for general guidance only and may not accurately reflect the exact location or surrounding buildings. Prospective buyers and interested parties are strongly advised to independently verify the precise location and surroundings before bidding.