Sold Prior | Lot 22

Land & Buildings to the West Side Of Otley Road, Shipley , West Yorkshire BD17 7AA

Sold Prior

  • Commercial Property

Call the team on 0113 393 3482 for more information

Auction Date

Wed 23/10/2024

Auction Time

12:00

Auction Venue

Live Stream

We are delighted to offer the remaining long leasehold interest in this commercial premises which is offered with vacant possession. The property occupies a prominent main road location in Shipley and is likely to appeal to investors, business owners and speculators looking to extend the lease and renegotiate terms at some point in the future. Lease Information: 75 years from 01/11/1966 Service Charge: £193.73 per quarter Ground Rent: £14,350 per annum.

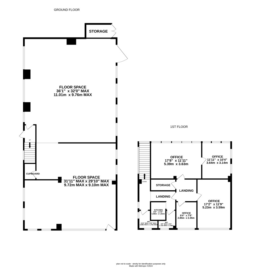
Ground Floor

Open floor space

First Floor

Four offices, kitchen and two WCs

Externally

Access to the side of the building and external store

Additional Information

Council Tax

Bradford

Tenure

Leasehold

Disclaimer

Any information in relation to the length of lease, service charge, ground rent and council tax has been confirmed by our sellers. We advise buyers to make their own enquiries through their solicitors to verify that the information provided is accurate and not been subject to any change.

Charges and Payments

In addition to the deposit Administration Charge: 0.9% inc VAT of the purchase price subject to a minimum of £1,500 inc VAT.

Important Notice to Prospective Buyers:

We draw your attention to the Special Conditions of Sale within the Legal Pack, referring to other charges in addition to the purchase price which may become payable. Such costs may include Search Fees, reimbursement of Sellers costs and Legal Fees, and Transfer Fees amongst others.

Additional Fees

Administration Charge - See above

Disbursements - Please see the legal pack for any disbursements listed that may become payable by the purchaser on completion.

View Larger Map

Disclaimer: The map preview provided above is for general guidance only and may not accurately reflect the exact location or surrounding buildings. Prospective buyers and interested parties are strongly advised to independently verify the precise location and surroundings before bidding.