Sold Prior | Lot 27

14 West Wells Road, Ossett , West Yorkshire WF5 8PH

Sold Prior

  • Link Detached House
  • 4 Bedrooms

Call the team on 0113 393 3482 for more information

Auction Date

Wed 23/10/2024

Auction Time

12:00

Auction Venue

Live Stream

This spacious link-detached property, currently split into two apartments, is offered for sale via traditional auction. Whilst the property does require full renovation throughout it has incredible potential to be turned into a perfect family home and would make a great renovation project. In addition to the house, the property also benefits from a detached garage set in a spacious plot opposite the property. The plot has development potential, subject to the passing of relevant planning permission. Situated in the popular part of Ossett, the property is well placed to local amenities including shops, schools and local bus routes are nearby. Ossett also has great transport links to the M1 and all other major roads.

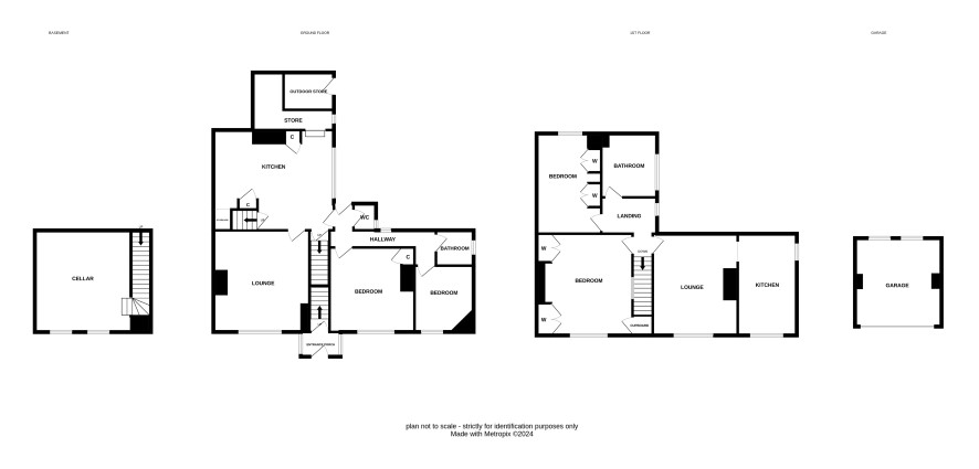
Lower Ground Floor

Cellar.

Ground Floor

Apartment, lounge, kitchen, two bedrooms, bathroom and store.

First Floor

Lounge, kitchen, two bedrooms and bathroom.

Externally

Garden and garage.

ADDITIONAL INFORMATION

Council Tax

Band E.

Tenure

Freehold.

Charges & Payments

In addition to the deposit Administration Charge: 0.9% inc VAT of the purchase price subject to a minimum of £1,500 inc VAT. Searches £300 inc VAT

Important Notice to Prospective Buyers:

We draw your attention to the Special Conditions of Sale within the Legal Pack, referring to other charges in addition to the purchase price which may become payable. Such costs may include Search Fees, reimbursement of Sellers costs and Legal Fees, and Transfer Fees amongst others.

Additional Fees

Administration Charge - See above

Disbursements - Please see the legal pack for any disbursements listed that may become payable by the purchaser on completion.

View Larger Map

Disclaimer: The map preview provided above is for general guidance only and may not accurately reflect the exact location or surrounding buildings. Prospective buyers and interested parties are strongly advised to independently verify the precise location and surroundings before bidding.