For Sale By Auction | 12:00, 23 October 2024 | Lot 63

32 Arthington Grove, Leeds, West Yorkshire, Leeds LS10 2NE

Sold

  • Terraced House
  • 2 Bedrooms

Call the team on 0113 393 3482 for more information

Auction Date

Wed 23/10/2024

Auction Time

12:00

Auction Venue

Live Stream

This two bedroom back to back terrace would be ideal for a buy to let landlord or someone after a refurbishment project. Internally the property requires refurbishment and cosmetic upgrades. It also benefits from an enclosed garden to the front. The house is located within Hunslet, two miles south of Leeds city centre and is next to the M621 and motorway links making it excellent for commuters. It's a highly popular rental location and similar properties in good condition have recently rented in the region of £800-850pcm.

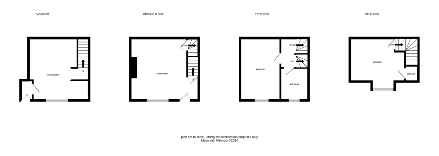
Lower Ground Floor

Kitchen

Ground Floor

Living room

First Floor

Bathroom and bedroom

Second Floor

Bedroom

Externally

Yard to the front

Additional Information

Council Tax

Leeds City Council - Band A

Tenure

Freehold

Charges and Payments

In addition to the deposit Administration Charge: 0.9% inc VAT of the purchase price subject to a minimum of £1,500 inc VAT.

Important Notice to Prospective Buyers:

We draw your attention to the Special Conditions of Sale within the Legal Pack, referring to other charges in addition to the purchase price which may become payable. Such costs may include Search Fees, reimbursement of Sellers costs and Legal Fees, and Transfer Fees amongst others.

Additional Fees

Administration Charge - See above

Disbursements - Please see the legal pack for any disbursements listed that may become payable by the purchaser on completion.

View Larger Map

Disclaimer: The map preview provided above is for general guidance only and may not accurately reflect the exact location or surrounding buildings. Prospective buyers and interested parties are strongly advised to independently verify the precise location and surroundings before bidding.