For Sale By Auction | 12:00, 23 October 2024 | Lot 40

11 Morris View, Leeds, Leeds , West Yorkshire LS5 3EY

Sold

  • Terraced House
  • 3 Bedrooms

Call the team on 0113 393 3482 for more information

Auction Date

Wed 23/10/2024

Auction Time

12:00

Auction Venue

Live Stream

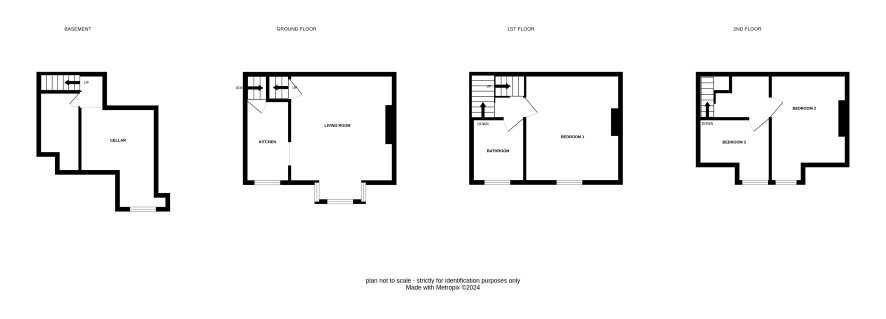
This three bedroom back to back terrace has central heating, double glazing and although used as a buy to let investment for many years, is now offered with vacant possession. The property briefly comprises a useful cellar, living room and kitchen to the ground floor, bedroom and bathroom to the first floor with two further bedrooms on the second floor. It is located on a cul de sac in the popular residential area of Kirkstall less than half a mile from the local train station and 3 miles to the North West of Leeds city centre. Please note that this property is being sold by a member of staff at Auction House or a staff member's family or an associate.

Lower Ground Floor

Cellar.

Ground Floor

Living room and kitchen.

First Floor

Bedroom, room and bathroom.

Second Floor

Two bedrooms.

Externally

Front yard.

ADDITIONAL INFORMATION

Council Tax

Band A.

Tenure

Freehold.

Charges & Payments

In addition to the deposit Administration Charge: 0.9% inc VAT of the purchase price subject to a minimum of £1,500 inc VAT. Searches £300 inc VAT

Important Notice to Prospective Buyers:

We draw your attention to the Special Conditions of Sale within the Legal Pack, referring to other charges in addition to the purchase price which may become payable. Such costs may include Search Fees, reimbursement of Sellers costs and Legal Fees, and Transfer Fees amongst others.

Additional Fees

Administration Charge - See above

Disbursements - Please see the legal pack for any disbursements listed that may become payable by the purchaser on completion.

View Larger Map

Disclaimer: The map preview provided above is for general guidance only and may not accurately reflect the exact location or surrounding buildings. Prospective buyers and interested parties are strongly advised to independently verify the precise location and surroundings before bidding.