For Sale By Auction | 12:00, 23 October 2024 | Lot 49

25 Newton Lodge Drive, Leeds, Leeds , West Yorkshire LS7 3JP

Sold

  • Semi-Detached House
  • 3 Bedrooms

Call the team on 0113 393 3482 for more information

Auction Date

Wed 23/10/2024

Auction Time

12:00

Auction Venue

Live Stream

This three bedroom semi detached house is in need of a full refurbishment and suits an investor looking to add value to a property. It's in tired condition throughout but would make a great project to flip or as a buy to let property. It also benefits from a front and rear garden. It's located in Potternewton, a suburb of Leeds two miles north of the city centre. It's alongside Scott Hall Road which is a major road into Leeds which has regular bus routes. It is a predominantly residential area however facilities such as schools, shops and Chapel Allerton hospital are a short distance away. Buyers please be aware that this is an Airey's build which is a non standard construction however the vendor has undertaken reinforcement works, further details can be seen in the legal pack. Buyers are advised to do their own research.

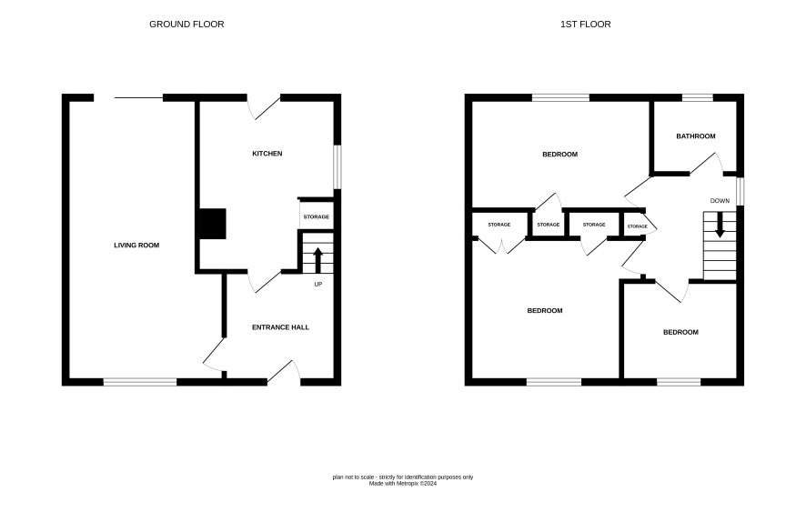
Ground Floor

Living room and kitchen.

First Floor

Three bedrooms and a bathroom

Externally

Front and rear garden, driveway.

Additioanl Information

Council Tax

Leeds city council - Band A

Tenure

Freehold

Charges and Payment

In addition to the deposit Administration Charge: 0.9% inc VAT of the purchase price subject to a minimum of £1,500 inc VAT. Searches £300 inc VAT

Important Notice to Prospective Buyers:

We draw your attention to the Special Conditions of Sale within the Legal Pack, referring to other charges in addition to the purchase price which may become payable. Such costs may include Search Fees, reimbursement of Sellers costs and Legal Fees, and Transfer Fees amongst others.

Additional Fees

Administration Charge - See above

Disbursements - Please see the legal pack for any disbursements listed that may become payable by the purchaser on completion.

View Larger Map

Disclaimer: The map preview provided above is for general guidance only and may not accurately reflect the exact location or surrounding buildings. Prospective buyers and interested parties are strongly advised to independently verify the precise location and surroundings before bidding.