For Sale By Auction | 12:00, 23 October 2024 | Lot 14

44 - 48 Kirkgate, Silsden, Keighley, Keighley, West Yorkshire BD20 0AL

Sold

  • Mixed Use

Call the team on 0113 393 3482 for more information

Auction Date

Wed 23/10/2024

Auction Time

12:00

Auction Venue

Live Stream

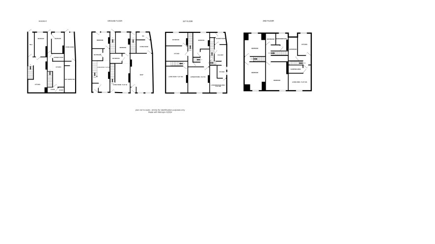
This substantial mixed used property comprises one shop with six flats (1 x 3 bed duplex, 3 x 2 bed duplex and 2 x studios), an advertising hoarding and is sure to appeal to anyone looking to add to their portfolio. At present, all of the premises are let and the property is generating an income of £50,466. That's a return of over 14% based on the quoted guide price! The property is located in the heart of Silsden village with a pleasant rear courtyard enjoying views over the weir and beck. Any interested parties should be aware that at present, the £1,200 p.a income from the advertising hoarding is by verbal agreement only.

Additional Information

Council Tax

Metropolitan District of Bradford

Tenure

Freehold

Charges and Payments

In addition to the deposit Administration Charge: 0.9% inc VAT of the purchase price subject to a minimum of £1,500 inc VAT.

Important Notice to Prospective Buyers:

We draw your attention to the Special Conditions of Sale within the Legal Pack, referring to other charges in addition to the purchase price which may become payable. Such costs may include Search Fees, reimbursement of Sellers costs and Legal Fees, and Transfer Fees amongst others.

Additional Fees

Administration Charge - See above

Disbursements - Please see the legal pack for any disbursements listed that may become payable by the purchaser on completion.

View Larger Map

Disclaimer: The map preview provided above is for general guidance only and may not accurately reflect the exact location or surrounding buildings. Prospective buyers and interested parties are strongly advised to independently verify the precise location and surroundings before bidding.