Sold Prior | Lot 16

165 Main Street, Wilsden, Bradford , West Yorkshire BD15 0HR

Sold Prior

  • Terraced House
  • 3 Bedrooms

Call the team on 0113 393 3482 for more information

Auction Date

Wed 23/10/2024

Auction Time

12:00

Auction Venue

Live Stream

This spacious three bedroom end terrace has been a cherished family home for many decades but is now in need of modernisation and refurbishment to restore it to former glories. It boasts a good sized cellar / workshop (with its own access), two reception rooms and a kitchen to the ground floor with three bedrooms and a shower room to the first floor. Externally the property enjoys a modest front yard with generous garden and driveway to the rear. Although the current owners have had uninterrupted use of the double garage (with service pit) since their purchase, it does not form part of the title deeds and if of interest, the successful buyer will have to come to their own agreement with the neighbour following completion. The property is located in the sought after village of Wilsden 5 miles to the North West of Bradford city centre. Upon inspection, Auction House noticed that some of the floors were sloping and interested parties should do their own research in this regard prior to bidding. A leak in the living room was noticed at the final viewing. Please see the photograph in the sales details for further information. The property will be sold as seen with all contents, fixtures and fittings included.

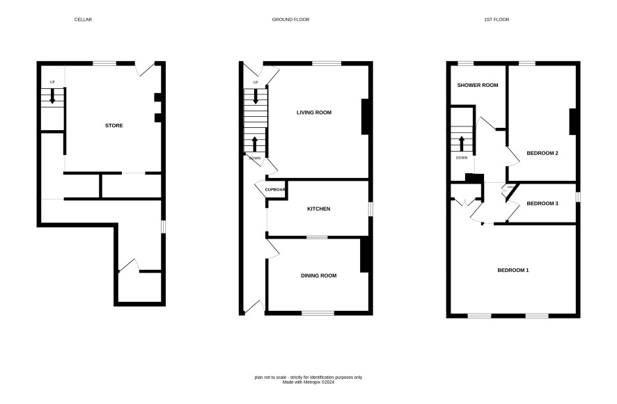
Lower Ground Floor

Store rooms

Ground Floor

Living room, dining room and kitchen

First Floor

Three bedrooms and a shower room

Externally

Gardens to the front and rear and a driveway

Additional Information

Council Tax

Bradford Metropolitan District Council - Band B

EPC Rating

D

Tenure

Freehold

Charges and Payments

In addition to the deposit Administration Charge: 0.9% inc VAT of the purchase price subject to a minimum of £1,500 inc VAT. Searches £300 inc VAT

Important Notice to Prospective Buyers:

We draw your attention to the Special Conditions of Sale within the Legal Pack, referring to other charges in addition to the purchase price which may become payable. Such costs may include Search Fees, reimbursement of Sellers costs and Legal Fees, and Transfer Fees amongst others.

Additional Fees

Administration Charge - See above

Disbursements - Please see the legal pack for any disbursements listed that may become payable by the purchaser on completion.

View Larger Map

Disclaimer: The map preview provided above is for general guidance only and may not accurately reflect the exact location or surrounding buildings. Prospective buyers and interested parties are strongly advised to independently verify the precise location and surroundings before bidding.