For Sale By Auction | 12:00, 23 October 2024 | Lot 58

39 Oxford Avenue, Guiseley, Leeds, Leeds, West Yorkshire LS20 9BY

Sold

  • Semi-Detached House
  • 3 Bedrooms

Call the team on 0113 393 3482 for more information

Auction Date

Wed 23/10/2024

Auction Time

12:00

Auction Venue

Live Stream

This three bedroom semi detached house would be ideal for an investor wanting to add value to the property. It does require updating and modernisation throughout but benefits from a driveway plus a front and rear garden. The house is located in the heart of Guiseley which is a popular location for Leeds commuters. It is a sought after town located 10 miles North West of Leeds. Oxford Avenue is less than a five minute walk to Guiseley train station and is a 15 minute train journey to Leeds City Centre. There are ample local shops, restaurants, leisure facilities and highly regarded schools within the town.

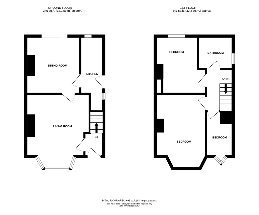
Ground Floor

Living room, dining room and kitchen.

First Floor

Three bedrooms and bathroom.

Externally

Driveway and front and rear garden.

ADDITIONAL INFORMATION

Council Tax

Band C.

Tenure

Freehold.

Charges & Payments

In addition to the deposit Administration Charge: 0.9% inc VAT of the purchase price subject to a minimum of £1,500 inc VAT. Searches £300 inc VAT

Important Notice to Prospective Buyers:

We draw your attention to the Special Conditions of Sale within the Legal Pack, referring to other charges in addition to the purchase price which may become payable. Such costs may include Search Fees, reimbursement of Sellers costs and Legal Fees, and Transfer Fees amongst others.

Additional Fees

Administration Charge - See above

Disbursements - Please see the legal pack for any disbursements listed that may become payable by the purchaser on completion.

View Larger Map

Disclaimer: The map preview provided above is for general guidance only and may not accurately reflect the exact location or surrounding buildings. Prospective buyers and interested parties are strongly advised to independently verify the precise location and surroundings before bidding.