For Sale By Auction | 12:00, 11 December 2024 | Lot 34

3 Drury Lane, Horsforth, Leeds, Leeds, West Yorkshire LS18 4BQ

Sold

  • Terraced House
  • 3 Bedrooms

Call the team on 0113 393 3482 for more information

Auction Date

Wed 11/12/2024

Auction Time

12:00

Auction Venue

Live Stream

This three bedroom through terrace has been a buy to let investment for many years and although the majority of windows and all external doors have been recently replaced, it is now in need of refurbishment. There may also be potential to reconfigure the property to make a fourth bedroom or add a dormer to the rear subject to all the necessary consents being obtained. The property is located in the sought after suburb of Horsforth in Leeds and is just a one minute walk from the local park as well as the plethora of shops and amenities on Town Street.

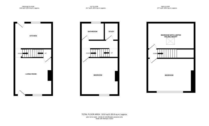
Ground Floor

Living room and kitchen

First Floor

Bedroom, study and bathroom

Second Floor

Two bedrooms

Externally

Rear yard

Additional Information

Council Tax

Leeds City Council - Band B

Tenure

Freehold

Charges and Payments

In addition to the deposit Administration Charge: 0.9% inc VAT of the purchase price subject to a minimum of £1,500 inc VAT. Searches £300 inc VAT

Important Notice to Prospective Buyers:

We draw your attention to the Special Conditions of Sale within the Legal Pack, referring to other charges in addition to the purchase price which may become payable. Such costs may include Search Fees, reimbursement of Sellers costs and Legal Fees, and Transfer Fees amongst others.

Additional Fees

Administration Charge - See above

Disbursements - Please see the legal pack for any disbursements listed that may become payable by the purchaser on completion.

View Larger Map

Disclaimer: The map preview provided above is for general guidance only and may not accurately reflect the exact location or surrounding buildings. Prospective buyers and interested parties are strongly advised to independently verify the precise location and surroundings before bidding.