For Sale By Auction | 12:00, 11 December 2024 | Lot 23

66 Spennithorne Avenue, West Park, Leeds, Leeds , West Yorkshire LS16 6JA

Sold

  • Semi-Detached House
  • 3 Bedrooms

Call the team on 0113 393 3482 for more information

Auction Date

Wed 11/12/2024

Auction Time

12:00

Auction Venue

Live Stream

This substantial three bedroom semi-detached property is now in need of refurbishment but is sure to make an excellent family home once the required works have been completed. Interested parties should also note that the adjoining property has a loft conversion offering further potential for those requiring a bit more space. Externally the property has a front garden with driveway leading to a garage and lengthy rear garden. West Park is a highly sought after residential area of Leeds. It is within walking distance of local cafes and bistros and the cosmopolitan amenities in Headingley are a short distance away, as is the Ring Road, which allows quick, easy access to other Leeds suburbs. There is a local gym and health spa and nurseries, primary schools and high schools all lie within easy walking distance. Leeds Grammar School at Alwoodley Gates is accessible via the Ring Road and the school bus stops nearby.

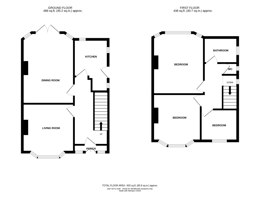
Ground Floor

Living room, dining room and kitchen

First Floor

Three bedrooms and a bathroom

Externally

Gardens, driveway and a garage

Additional Information

Council Tax

Leeds City Council - Band C

Tenure

Freehold

Charges and Payments

In addition to the deposit Administration Charge: 0.9% inc VAT of the purchase price subject to a minimum of £1,500 inc VAT. Searches £300 inc VAT

Disbursments

Any additional disbursements payable by the purchaser are yet to be confirmed by the vendor's solicitor. For more details, please see the legal pack.

Important Notice to Prospective Buyers:

We draw your attention to the Special Conditions of Sale within the Legal Pack, referring to other charges in addition to the purchase price which may become payable. Such costs may include Search Fees, reimbursement of Sellers costs and Legal Fees, and Transfer Fees amongst others.

Additional Fees

Administration Charge - See above

Disbursements - Please see the legal pack for any disbursements listed that may become payable by the purchaser on completion.

View Larger Map

Disclaimer: The map preview provided above is for general guidance only and may not accurately reflect the exact location or surrounding buildings. Prospective buyers and interested parties are strongly advised to independently verify the precise location and surroundings before bidding.