For Sale By Auction | 12:00, 11 December 2024 | Lot 1

99 Mexborough Place, Leeds , West Yorkshire LS7 3EB

Sold

  • Terraced House
  • 3 Bedrooms

Call the team on 0113 393 3482 for more information

Auction Date

Wed 11/12/2024

Auction Time

12:00

Auction Venue

Live Stream

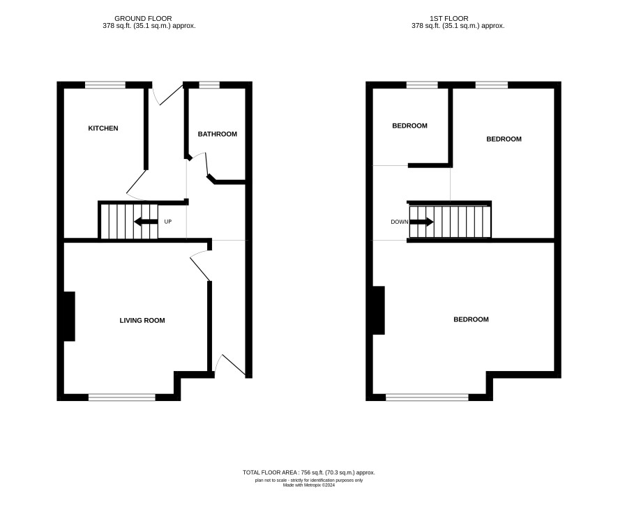
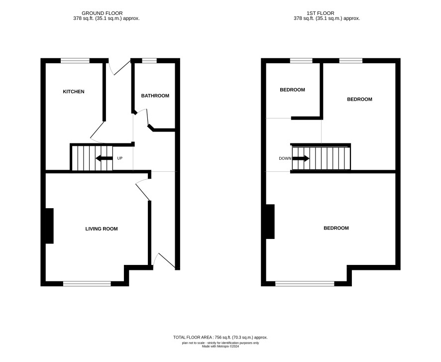
This three bedroom through terrace property has suffered from fire damage and now requires complete refurbishment. The property briefley comprises a living room, kitchen and bathroom to the ground floor with three bedrooms to the first floor. The property is located in Chapeltown, Leeds and is just 1.5 miles to the north of the city centre. We regret that due to the condition of the property, no viewings will be taking place prior to the auction. the north of the city centre.

Ground Floor

Living room, kitchen and bathroom

First Floor

Three bedrooms

Externally

Gardens to the front & rear

Additional Information

Council Tax

Leeds City Council - Band A

Tenure

Freehold

Charges and Payments

In addition to the deposit Administration Charge: 0.9% inc VAT of the purchase price subject to a minimum of £1,500 inc VAT. Searches £300 inc VAT

Important Notice to Prospective Buyers:

We draw your attention to the Special Conditions of Sale within the Legal Pack, referring to other charges in addition to the purchase price which may become payable. Such costs may include Search Fees, reimbursement of Sellers costs and Legal Fees, and Transfer Fees amongst others.

Additional Fees

Administration Charge - See above

Disbursements - Please see the legal pack for any disbursements listed that may become payable by the purchaser on completion.

View Larger Map

Disclaimer: The map preview provided above is for general guidance only and may not accurately reflect the exact location or surrounding buildings. Prospective buyers and interested parties are strongly advised to independently verify the precise location and surroundings before bidding.