For Sale By Auction | 12:00, 11 December 2024 | Lot 42

157 Norristhorpe Lane, Liversedge, Liversedge , West Yorkshire WF15 7AN

Sold

  • Detached House
  • 3 Bedrooms

Call the team on 0113 393 3482 for more information

Auction Date

Wed 11/12/2024

Auction Time

12:00

Auction Venue

Live Stream

This is a unique three bedroom detached house with on street parking and a rear garden. This will be ideal for someone wanting to add value to a property. Internally the property requires a full refurbishment and the rear garden is heavily overgrown. It's located within Norristhorpe, a residential village next to Liversedge and Heckmondwike. There are local schools, supermarkets and amenities within an easy drive. Internally we did identify some cracking that we believe to be historical, however we advise any buyers to do their own research in this matter. Buyers are also advised to pay close attention to the documents within the legal pack pertaining to the septic tank.

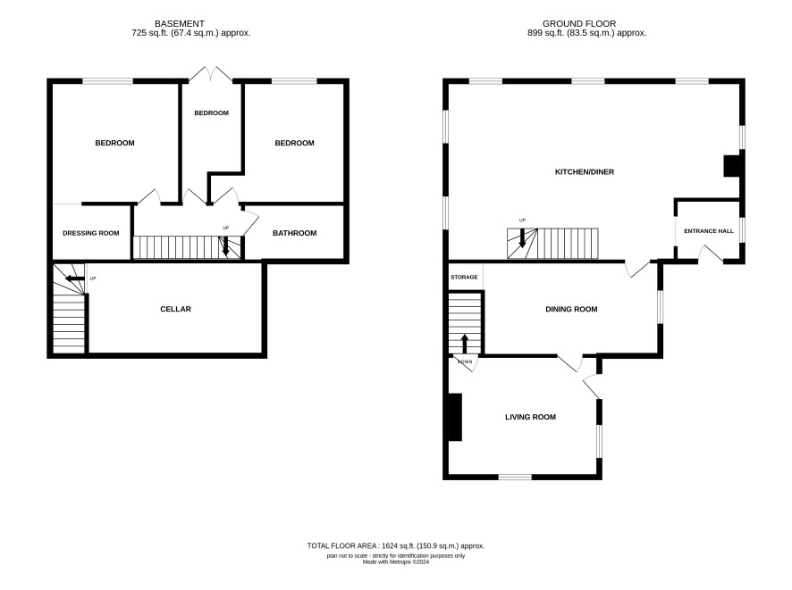
Lower Ground Floor

Three bedrooms, room and bathroom.

Ground Floor

Kitchen, dining room and living room.

Externally

Off street parking and rear garden.

ADDITIONAL INFORMATION

Council Tax

Band D.

Tenure

Freehold.

Charges & Payments

In addition to the deposit Administration Charge: 0.9% inc VAT of the purchase price subject to a minimum of £1,500 inc VAT. Buyer's Premium: £1,560 inc VAT.

Important Notice to Prospective Buyers:

We draw your attention to the Special Conditions of Sale within the Legal Pack, referring to other charges in addition to the purchase price which may become payable. Such costs may include Search Fees, reimbursement of Sellers costs and Legal Fees, and Transfer Fees amongst others.

Additional Fees

Administration Charge - See above

Disbursements - Please see the legal pack for any disbursements listed that may become payable by the purchaser on completion.

View Larger Map

Disclaimer: The map preview provided above is for general guidance only and may not accurately reflect the exact location or surrounding buildings. Prospective buyers and interested parties are strongly advised to independently verify the precise location and surroundings before bidding.