For Sale By Auction | 12:00, 11 December 2024 | Lot 5

1 Pawson Street, Robin Hood, Wakefield, Wakefield, West Yorkshire WF3 3BH

Sold

  • Terraced House
  • 2 Bedrooms

Call the team on 0113 393 3482 for more information

Auction Date

Wed 11/12/2024

Auction Time

12:00

Auction Venue

Live Stream

This is a two bedroom end terrace that is classed as mixed use and benefits from a side garden and off street parking. This would be ideal for someone wanting to add value to a property. It requires a full refurbishment and has the option to fully revert it back to a full residential unit, subject to the relevant permissions. It is located within Robin Hood, a village in between Leeds and Wakefield. There are local schools and pubs, however more amenities can be found in nearby Rothwell. Robin Hood is conveniently located next to the M62 and M1 so is popular with commuters.

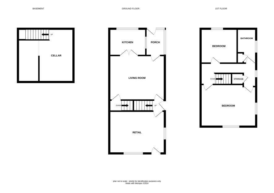
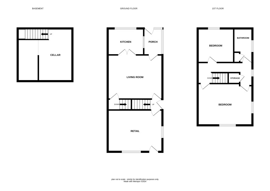
Lower Ground Floor

Cellar.

Ground Floor

Retail, living room, porch and kitchen.

First Floor

Two bedrooms and bathroom.

Externally

Garden to side and parking space.

ADDITIONAL INFORMATION

Council Tax

Band A.

Tenure

Freehold.

Charges & Payments

In addition to the deposit Administration Charge: 0.9% inc VAT of the purchase price subject to a minimum of £1,500 inc VAT. Searches £300 inc VAT

Important Notice to Prospective Buyers:

We draw your attention to the Special Conditions of Sale within the Legal Pack, referring to other charges in addition to the purchase price which may become payable. Such costs may include Search Fees, reimbursement of Sellers costs and Legal Fees, and Transfer Fees amongst others.

Additional Fees

Administration Charge - See above

Disbursements - Please see the legal pack for any disbursements listed that may become payable by the purchaser on completion.

View Larger Map

Disclaimer: The map preview provided above is for general guidance only and may not accurately reflect the exact location or surrounding buildings. Prospective buyers and interested parties are strongly advised to independently verify the precise location and surroundings before bidding.