For Sale By Auction | 12:00, 11 December 2024 | Lot 11

57 Nowell Place, Leeds, Leeds, West Yorkshire LS9 6HT

Sold

  • Terraced House
  • 4 Bedrooms

Call the team on 0113 393 3482 for more information

Auction Date

Wed 11/12/2024

Auction Time

12:00

Auction Venue

Live Stream

This four bedroom through terrace is offered for sale via traditional auction. The property is currently tenanted generating £14,352 gross rental income per annum, this reflects over a 15.95% gross yield return based on the guide price. Please note that the property does require some internal works. Located in the selective license area of Harehills, close to local amenities and shops, Leeds city centre and within walking distance of St. James's Hospital.

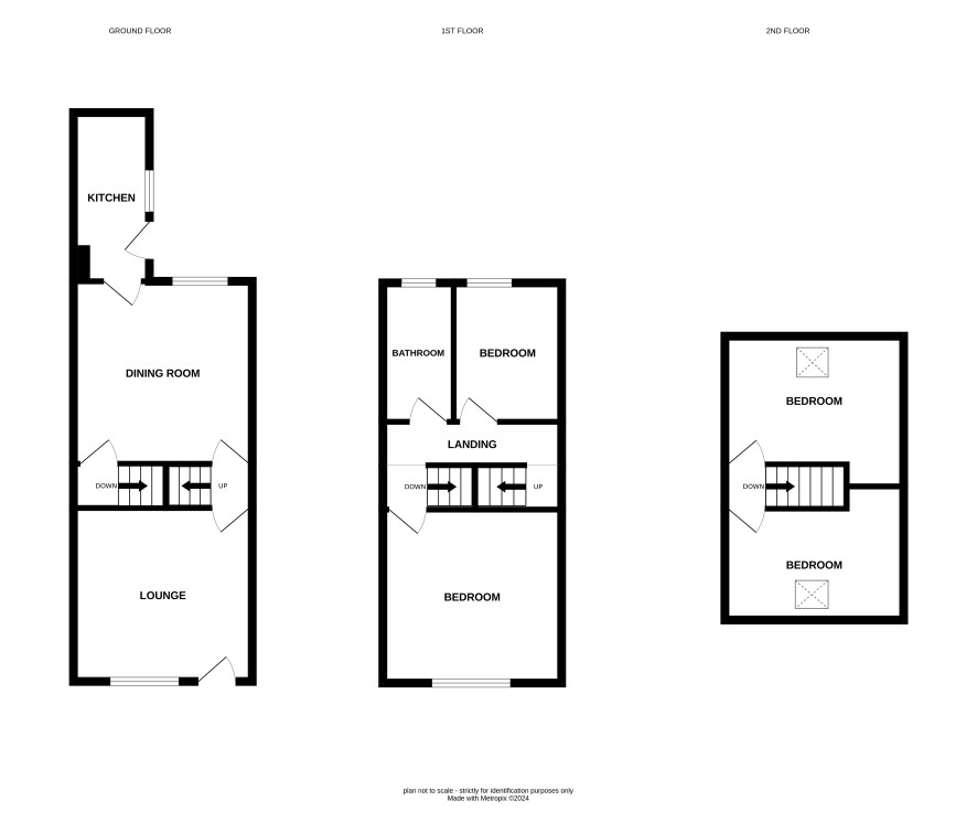
Lower Ground Floor

Cellar

Ground Floor

Lounge, dining room and kitchen

First Floor

Two bedrooms and a bathroom

Second Floor

Two bedrooms

Externally

Yard to the rear

Additional Information

Council Tax

Leeds City Council - Band A

Tenure

Freehold

Charges and Payments

In addition to the deposit Administration Charge: 0.9% inc VAT of the purchase price subject to a minimum of £1,500 inc VAT.

Important Notice to Prospective Buyers:

We draw your attention to the Special Conditions of Sale within the Legal Pack, referring to other charges in addition to the purchase price which may become payable. Such costs may include Search Fees, reimbursement of Sellers costs and Legal Fees, and Transfer Fees amongst others.

Additional Fees

Administration Charge - See above

Disbursements - Please see the legal pack for any disbursements listed that may become payable by the purchaser on completion.

View Larger Map

Disclaimer: The map preview provided above is for general guidance only and may not accurately reflect the exact location or surrounding buildings. Prospective buyers and interested parties are strongly advised to independently verify the precise location and surroundings before bidding.