Withdrawn | Lot 21

34-36 White Apron Street, South Kirkby, Pontefract , West Yorkshire WF9 3LH

Withdrawn

  • Mixed Use

Call the team on 0113 393 3482 for more information

Auction Date

Wed 05/02/2025

Auction Time

12:00

Auction Venue

Live Stream

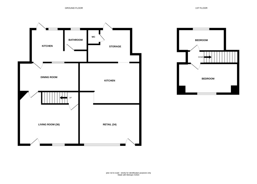
This mixed-use property has been refurbished in recent months and comprises a two bedroom terrace to one side with an adjoining takeaway on the other. Although the residential element is vacant at present, we expect the entire property to be fully let and generating an annual income of £16,800 prior to the auction. Based on the quoted guide price this equates to an impressive annual income of almost 13%. The property is located in the village of South Kirkby 11 miles to the south east of Wakefield city centre.

House

Two bedroom terraced house.

Shop

Takeaway

Additional Information

Council Tax

Wakefield

Tenure

Freehold

Charges and Payments

In addition to the deposit Administration Charge: 0.9% inc VAT of the purchase price subject to a minimum of £1,500 inc VAT.

Important Notice to Prospective Buyers:

We draw your attention to the Special Conditions of Sale within the Legal Pack, referring to other charges in addition to the purchase price which may become payable. Such costs may include Search Fees, reimbursement of Sellers costs and Legal Fees, and Transfer Fees amongst others.

Additional Fees

Administration Charge - See above

Disbursements - Please see the legal pack for any disbursements listed that may become payable by the purchaser on completion.

View Larger Map

Disclaimer: The map preview provided above is for general guidance only and may not accurately reflect the exact location or surrounding buildings. Prospective buyers and interested parties are strongly advised to independently verify the precise location and surroundings before bidding.